Eladó újszerű ház - Győrújbarát

KAPCSOLAT
Kovács Eszter


+36 20 397

kovacs.eszter@

Az időpont kérés naptár ikonja
IDŐPONTOT KÉREK
A visszahívás kérés telefon ikonja egy azt körbe ölelő nyíllal
VISSZAHÍVÁST KÉREK
Ajánlom egy ismerősömnek ikon
AJÁNLOM EGY ISMERŐSÖMNEK
Facebook megosztás ikon
MEGOSZTÁS

KAPCSOLATFELVÉTEL

Küldés

Az üzenetet sikeresen elküldtük!
Hiba történt!
INGATLAN ADATAI

Ingatlan jellege

családi ház

Belső terület

151 m²

Telek terület

865 m²

Tájolás

délnyugat

Építési állapot

újszerű

Építési mód

tégla

Szobák száma

6 szoba

Terasz

42 m²

Épület szintje

1.

Épült

2020

Ingatlan állapot

kívül: kitűnő
belül: kitűnő

Klíma

van

Szigetelés

15 cm

Ablak szerkezete

3 rétegű thermoplan

Fűtés

gázkazán

Komfort

összkomfort

Parkolás

van fedetlen felszíni beálló

Közműállapot

csatorna: bekötve
gáz: bekötve
villany: bekötve
víz: bekötve

Energetika

nincs

Az időpont kérés naptár ikonja
HTML
Az időpont kérés naptár ikonja
PDF
Eladó újszerű ház
Ingatlan azonosító:
4272_ko

Győr-Moson-Sopron megye, Győrújbarát

Irányár

190 M Ft
(1.26 M Ft/㎡)

Szobák

6 szoba

Terület

151 m²

Telek terület

865 m²
INGATLAN LEÍRÁSA
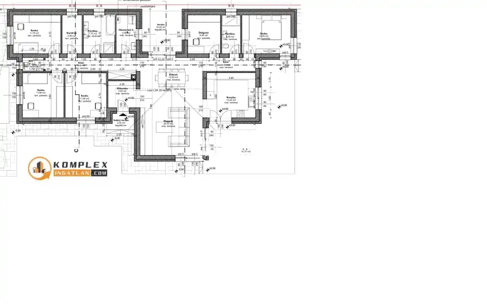
5 hálószobás modern családi ház Győrújbarát csendes zsákutcájában

A Komplex Ingatlaniroda megvételre kínálja Győrújbarát frekventált, mégis csendes zsákutcájában ezt a 2020-ban épült, modern kialakítású családi házat, amely tágas tereivel és átgondolt elrendezésével ideális választás lehet nagyobb családok számára.

Az ingatlan 860 m²-es telken, 151 m² hasznos alapterülettel rendelkezik, amelyet egy 42 m²-es terasz és egy különleges hangulatú 10 m²-es belső bevilágító udvar egészít ki. A ház kialakítása modern, az életterek jól elkülönülnek, ugyanakkor világos és tágas belső tereket biztosítanak.

Főbb adatok
• Hasznos alapterület: 151 m²
• Telek mérete: 860 m²
• Terasz: 42 m²
• Belső bevilágító udvar: 10 m²
• Építés éve: 2020
• Falazat: tégla
• Homlokzati szigetelés: 15 cm

Belső kialakítás
• Tágas, világos 39 m²-es nappali–étkező
• Igényes, modern különálló konyha
• 5 teljes értékű hálószoba
• 2 fürdőszoba és 2 külön WC
• hidromasszázs kád
• Gardróbszoba
• Háztartási helyiség

A ház elrendezése jól átgondolt: a közösségi terek és a privát helyiségek kényelmesen elkülönülnek egymástól.

Műszaki jellemzők
• Fűtés: gázkazán + teljes padlófűtés
• Helyiségenként egyedileg szabályozható hőmérséklet
• Központi részen hűtő–fűtő klíma
• Szellőztető rendszer előkészítve
• Műanyag, 3 rétegű, hőszigetelt nyílászárók, kívül-belül matt antracit színben
• Motorizált, színazonos alumínium redőnyök minden nyílászárón
• Riasztó- és kamerarendszer

Külső kialakítás
A bejárati lépcső, a terasz, a járdák és a tágas autóbeálló egységes, modern térkő burkolatot kapott. A kapu automatizált, a kert pedig praktikus és családbarát kialakítású:
• Térkövezett grillezőhely
• 5 nagyméretű magaságyás kertészkedéshez
• Fa játszótér a gyermekek számára
• Föld felett telepített medence
• Parkosított kert
• Automata öntözőrendszer locsolóórával
• 12nm-es kerti tároló

Elhelyezkedés
Az ingatlan Győrújbarát egyik kedvelt, nyugodt zsákutcájában található, ahol a csendes lakókörnyezet és a kiváló infrastruktúra egyszerre adott. A közelben üzletek, iskola és szolgáltatások is könnyen elérhetők, a tömegközlekedés kiváló, autóval pedig Győr néhány perc alatt megközelíthető.

Ez a ház ideális választás azok számára, akik modern, tágas és jól átgondolt családi otthont keresnek, nagy kerttel és kiváló lakókörnyezettel.

Ár: 190.000.000 Ft

További információért és megtekintésért keressen bizalommal! Tel.: +36 20 397 0776

Irodánk díjmentesen segít hitel- és támogatás ügyintézés során, hogy Ön könnyedén megtalálja a legjobb pénzügyi megoldásokat.


INGATLAN ADATAI

Ingatlan jellege
családi ház
Belső terület
151 m²
Telek terület
865 m²
Tájolás
délnyugat
Építési állapot
újszerű
Építési mód
tégla
Szobák száma
6 szoba
Terasz
42 m²
Épület szintje
1.
Épült
2020
Ingatlan állapot
kívül: kitűnő
belül: kitűnő
Klíma
van
Szigetelés
15 cm
Ablak szerkezete
3 rétegű thermoplan
Fűtés
gázkazán
Komfort
összkomfort
Parkolás
van fedetlen felszíni beálló
Közműállapot
csatorna: bekötve
gáz: bekötve
villany: bekötve
víz: bekötve
Energetika
nincs
TÉRKÉP

Győr-Moson-Sopron megye, Győrújbarát

Hitelkalkulátor


KAPCSOLAT
Kovács Eszter
Kovács Eszter


+36 20 397 0776

kovacs.eszter@komplexingatlan.com

KAPCSOLAT
Kovács Eszter

+36 20 397

kovacs.eszter@

Az időpont kérés naptár ikonja
IDŐPONTOT KÉREK
A visszahívás kérés telefon ikonja egy azt körbe ölelő nyíllal
VISSZAHÍVÁST KÉREK
Ajánlom egy ismerősömnek ikon
AJÁNLOM EGY ISMERŐSÖMNEK
Facebook megosztás ikon
MEGOSZTÁS

KAPCSOLATFELVÉTEL

Küldés

Az üzenetet sikeresen elküldtük!
Hiba történt!
INGATLAN ADATAI

Ingatlan jellege

családi ház

Belső terület

151 m²

Telek terület

865 m²

Tájolás

délnyugat

Építési állapot

újszerű

Építési mód

tégla

Szobák száma

6 szoba

Terasz

42 m²

Épület szintje

1.

Épült

2020

Ingatlan állapot

kívül: kitűnő
belül: kitűnő

Klíma

van

Szigetelés

15 cm

Ablak szerkezete

3 rétegű thermoplan

Fűtés

gázkazán

Komfort

összkomfort

Parkolás

van fedetlen felszíni beálló

Közműállapot

csatorna: bekötve
gáz: bekötve
villany: bekötve
víz: bekötve

Energetika

nincs

Az időpont kérés naptár ikonja
HTML
Az időpont kérés naptár ikonja
PDF

Hasonló ingatlan hírdetések

Eladó újszerű családi ház, vagy kertes ház hirdetést keres Győrújbarát területén?
Jelenleg nincsenek hasonló aktuális ajánlatok Győrújbarát településen.
Tekintse meg további Győr-Moson-Sopron megyei ajánlatainkat !

eladó új építésű sorház, Győr

eladó új építésű sorház

Győr-Moson-Sopron megye, Győr, Szitásdomb
Családi ház, sorház – Győr Szitásdomb II. A Komplex Ingatlaniroda megvételre kínálja Győr egyik legdinamikusabban fejlődő környezetében, a Szitásdomb II. lakóparkban (közigazgatásilag Vámosszabadi...
Belső terület
112 m²
Telek terület
303 m²
Szobák
2+2

108 M Ft

eladó új építésű családi ház, Veszprémvarsány

eladó új építésű családi ház

Győr-Moson-Sopron megye, Veszprémvarsány
Új építésű családi ház eladó Veszprémvarsányban A Komplex Ingatlaniroda megvételre kínálja Veszprémvarsány csendes, családi házas övezetében ezt az új építésű családi házat, amely egy 812 m²-es sa...
Belső terület
88 m²
Telek terület
812 m²
Szobák
1+3

75 M Ft + Áfa

eladó családi ház, Mosonmagyaróvár

eladó családi ház

Győr-Moson-Sopron megye, Mosonmagyaróvár, Duna lakópark
Exkluzív családi ház eladó Mosonmagyaróváron – Duna-Liget lakópark, többfunkciós kialakítással A Komplex Ingatlaniroda kínálatában elérhető Mosonmagyaróváron, a Duna-Liget lakópark rendezett, nyugo...
Belső terület
156 m²
Telek terület
709 m²
Szobák
4

169 M Ft

eladó családi ház, Harka

eladó családi ház

Győr-Moson-Sopron megye, Harka
Harka külterületén, mesés környezetben, távol a város nyüzsgésétől, eladó egy 40.270m2-es területre épített bruttó 290m2, nettó:3x80m2-es, 3 szintes, alápincézett, teljesen önellátó ingatlan, amely ...
Belső terület
160 m²
Telek terület
40270 m²
Szobák
4

345 M Ft

azonnal költözhető
Azonnal költözhető
eladó családi ház, Mindszentpuszta

eladó családi ház

Győr-Moson-Sopron megye, Mindszentpuszta
Új Építésű Ingatlanok Egyedülálló Ajánlatként Mindszentpusztán! Örömmel mutatjuk be az ideális otthont az Ön számára. Öt gyönyörű nagy méretű telken, a festői Mindszentpusztán, Győrtől rövid távolság...
Belső terület
120 m²
Telek terület
1774 m²
Szobák
2

95 M Ft

eladó családi ház, Mosonmagyaróvár

eladó családi ház

Győr-Moson-Sopron megye, Mosonmagyaróvár
...
Belső terület
85 m²
Telek terület
350 m²
Szobák
3

122 M Ft

Győr-Moson-Sopron megye - Győrújbarát
Győr-Moson-Sopron megye - Győrújbarát
Győr-Moson-Sopron megye - Győrújbarát
Győr-Moson-Sopron megye - Győrújbarát
Győr-Moson-Sopron megye - Győrújbarát
Győr-Moson-Sopron megye - Győrújbarát
Győr-Moson-Sopron megye - Győrújbarát
Győr-Moson-Sopron megye - Győrújbarát
Győr-Moson-Sopron megye - Győrújbarát
Győr-Moson-Sopron megye - Győrújbarát
Győr-Moson-Sopron megye - Győrújbarát
Győr-Moson-Sopron megye - Győrújbarát
Győr-Moson-Sopron megye - Győrújbarát
Győr-Moson-Sopron megye - Győrújbarát
Győr-Moson-Sopron megye - Győrújbarát
Győr-Moson-Sopron megye - Győrújbarát