Eladó újszerű ikerház - Sződliget

KAPCSOLAT
Balta Mónika


+36 20 502

balta.monika@

Az időpont kérés naptár ikonja
IDŐPONTOT KÉREK
A visszahívás kérés telefon ikonja egy azt körbe ölelő nyíllal
VISSZAHÍVÁST KÉREK
Ajánlom egy ismerősömnek ikon
AJÁNLOM EGY ISMERŐSÖMNEK
Facebook megosztás ikon
MEGOSZTÁS

KAPCSOLATFELVÉTEL

Küldés

Az üzenetet sikeresen elküldtük!
Hiba történt!
INGATLAN ADATAI

Ingatlan jellege

ikerház

Belső terület

120 m²

Telek terület

400 m²

Tájolás

délkelet

Építési állapot

újszerű

Építési mód

tégla

Szobák száma

4+1 félszoba

Terasz

22 m²

Épület szintje

2.

Épült

2021

Ingatlan állapot

kívül: kitűnő
belül: luxus

Klíma

van

Szigetelés

10 cm

Ablak szerkezete

3 rétegű thermoplan

Fűtés

cirko

Komfort

luxus

Parkolás

van önálló garázs

Közműállapot

csatorna: bekötve
gáz: bekötve
villany: bekötve
víz: bekötve

Energetika

B:

Az időpont kérés naptár ikonja
HTML
Az időpont kérés naptár ikonja
PDF
Eladó újszerű ikerház
Belső azonosító:
M2601
Ingatlan azonosító:
11972_bhi

Pest megye, Sződliget

Irányár

179 M Ft
(1.49 M Ft/㎡)

Szobák

4+1 félszoba

Terület

120 m²

Telek terület

400 m²
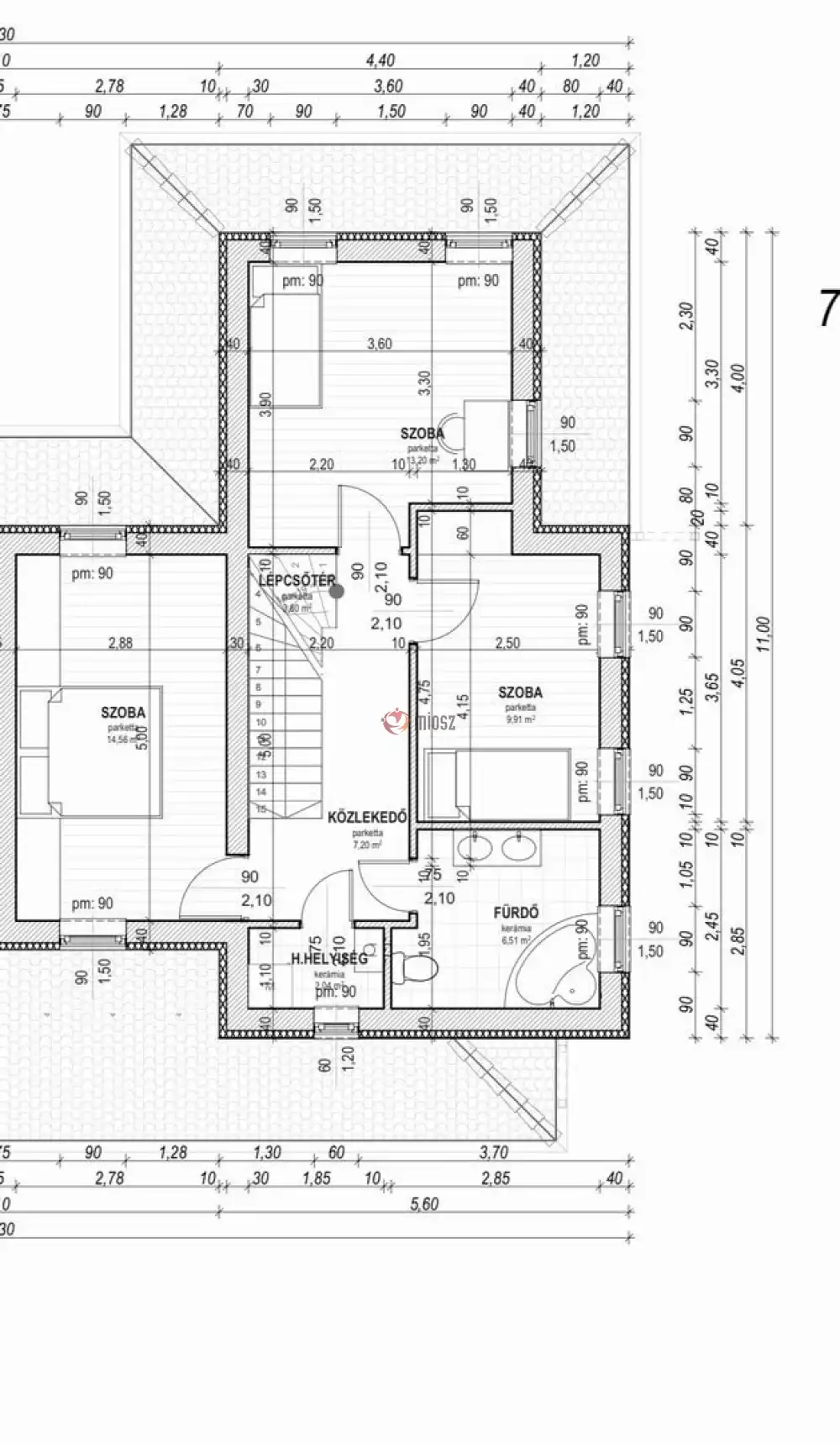
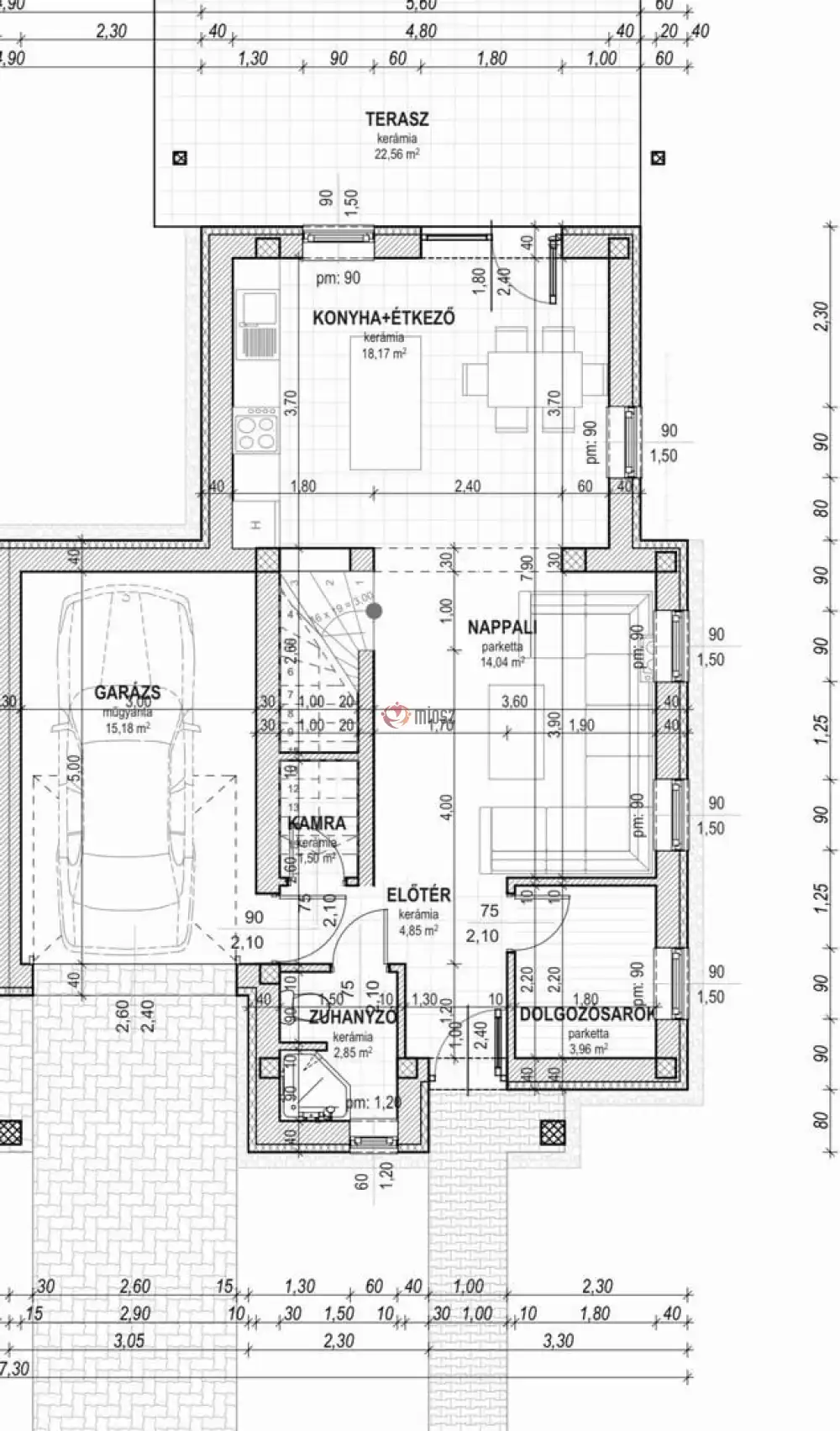
INGATLAN LEÍRÁSA
Eladó Sződligeten, a Dunaliget lakóparkban egy prémium kategóriás, modern, letisztult lakóingatlan.

A 2021-ben épült kétszintes ház 120 nm, földszintjén teraszkapcsolatos 32 nm-es nappali-étkező-konyha, dolgozószoba, fürdőszoba, kamra, előtér és 15 nm-es garázs van. Teljes értékű emeletén 3 hálószoba, fürdőszoba, mosókonyha és közlekedő kapott helyet.

Az ingatlan vasbeton aljzatra, Porotherm 30 N+F főfalakkal, Ytong 10 N+F válaszfalakkal, vasbeton gerendás béléstestes födémmel és Bramac betoncserép héjalással készült. Az épület körbeszigetelt: az aljzaton 5, a falazaton 10, a tetőszerkezetben 20 cm szigetelőréteg került elhelyezésre.

Az összközműves ház fűtése Bosch kondenzációs kombi cirkóval, vagy 4 inverteres klímával történhet. Mivel az ingatlan szaldós elszámolású napelem rendszerű, így villanyszámlája 0 Ft, a teljes havi rezsi 25-30.000,- Ft.
Az ablakok 6 légkamrás, 3 rétegű bukó-nyíló nyílászárók.

Ezek a műszaki adatok. A tulajdonosok rendkívül igényes, mind műszakilag, mind esztétikailag első osztályú otthont alakítottak ki maguknak. Íme a az extrák:
- 3x32 A
- 7,79-9,3 kW szaldós elszámolású napelem 2033-ig
- elektromos autótöltő
- 4 db hűtő-fűtő klíma
- okos redőny
- okos világítás
A burkolatokat Olaszországból, a design étkezőszékeket Hollandiából, és a futurisztikus - minden praktikus géppel felszerelt - konyhabútort Németországból rendelték. Természetesen mindkét fürdő is hasonló elvek mellett készült. A bútorok többsége a vételár részét képezi.

A leyland ciprusokkal teljesen elszeparált telek 400 nm, rajta 22 nm-es terasz, valamint ásott kútról működő automata öntöző- és csepegtetőrendszer van.

A társasházi ingatlan relatíve rövid határidővel birtokba vehető.

Az ikerház a sződligeti vasútállomástól autóval 5 percre van, ahonnan vonattal 35 perc alatt a Nyugati Pályaudvarra érhetünk.




INGATLAN ADATAI

Ingatlan jellege
ikerház
Belső terület
120 m²
Telek terület
400 m²
Tájolás
délkelet
Építési állapot
újszerű
Építési mód
tégla
Szobák száma
4+1 félszoba
Terasz
22 m²
Épület szintje
2.
Épült
2021
Ingatlan állapot
kívül: kitűnő
belül: luxus
Klíma
van
Szigetelés
10 cm
Ablak szerkezete
3 rétegű thermoplan
Fűtés
cirko
Komfort
luxus
Parkolás
van önálló garázs
Közműállapot
csatorna: bekötve
gáz: bekötve
villany: bekötve
víz: bekötve
Energetika
B:
TÉRKÉP

Pest megye, Sződliget

Hitelkalkulátor


KAPCSOLAT
Balta Mónika
Balta Mónika


+36 20 502 7522

balta.monika@gmail.com

KAPCSOLAT
Balta Mónika

+36 20 502

balta.monika@

Az időpont kérés naptár ikonja
IDŐPONTOT KÉREK
A visszahívás kérés telefon ikonja egy azt körbe ölelő nyíllal
VISSZAHÍVÁST KÉREK
Ajánlom egy ismerősömnek ikon
AJÁNLOM EGY ISMERŐSÖMNEK
Facebook megosztás ikon
MEGOSZTÁS

KAPCSOLATFELVÉTEL

Küldés

Az üzenetet sikeresen elküldtük!
Hiba történt!
INGATLAN ADATAI

Ingatlan jellege

ikerház

Belső terület

120 m²

Telek terület

400 m²

Tájolás

délkelet

Építési állapot

újszerű

Építési mód

tégla

Szobák száma

4+1 félszoba

Terasz

22 m²

Épület szintje

2.

Épült

2021

Ingatlan állapot

kívül: kitűnő
belül: luxus

Klíma

van

Szigetelés

10 cm

Ablak szerkezete

3 rétegű thermoplan

Fűtés

cirko

Komfort

luxus

Parkolás

van önálló garázs

Közműállapot

csatorna: bekötve
gáz: bekötve
villany: bekötve
víz: bekötve

Energetika

B:

Az időpont kérés naptár ikonja
HTML
Az időpont kérés naptár ikonja
PDF

Hasonló ingatlan hírdetések

Eladó újszerű családi ház, vagy kertes ház hirdetést keres Sződliget területén?
Jelenleg nincsenek hasonló aktuális ajánlatok Sződliget településen.
Tekintse meg további Pest megyei ajánlatainkat !

eladó új építésű családi ház, Erdőkertes

eladó új építésű családi ház

Pest megye, Erdőkertes, Szentsarok
***KÖZPONTHOZ KÖZEL*** ***ÁTADÁS 3 HÓNAP*** ***ÜGYVÉDI KÖLTSÉGET BERUHÁZÓ ÁLLJA*** Eladó Erdőkertesen 1112 nm-es telekre épülő, önálló, egyszintes, nettó 122 nm-es, nappali + 4 szobás, dupla ...
Belső terület
122 m²
Telek terület
1116 m²
Szobák
5

114.9 M Ft

eladó új építésű családi ház, Gyál

eladó új építésű családi ház

ÚJ ÉPÍTÉSŰ CSALÁDI HÁZ, NAPPALI + 4 SZOBA, BELSŐ KÉT SZINT

Pest megye, Gyál
ÚJ ÉPÍTÉSŰ CSALÁDI HÁZ, NAPPALI + 4 SZOBA, BELSŐ KÉT SZINT Gyál kedvelt részén, a központhoz közel kínáljuk eladásra ezt a 449 m2-es telekre, oldalhatárra épült 161 m2-es belső kétszintes nappali +...
Belső terület
161 m²
Telek terület
449 m²
Szobák
5

144.9 M Ft

Új építésű!
Új építésű
eladó új építésű családi ház, Dánszentmiklós

eladó új építésű családi ház

Dánszentmiklóson új építésű ikerház gépkocsi beállóval eladó

Pest megye, Dánszentmiklós
A Teleki és Fia Ingatlan értékesítésre kínálja Dánszentmiklóson családiházas övezetben ezt a 450 nm.-es elkerített telken épülő ikerház hátsó lakását. A két épületrészt fedett gépkocsibeálló köti öss...
Belső terület
66 m²
Telek terület
450 m²
Szobák
4

56.9 M Ft

CSOK igényelhető
CSOK igényelhető
eladó új építésű ikerház, Dabas

eladó új építésű ikerház

Pest megye, Dabas
Otthon Start Hitelre és CSOK Plusz-ra alkalmas ingatlan! Dabason kínálok megvételre egy körülbelül 700 m²-es telken épülő, nettó 125 m² alapterületű, prémium kialakítású újépítésű ikerházfelet. A go...
Belső terület
125 m²
Telek terület
700 m²
Szobák
5

134.9 M Ft

Új építésű!
Új építésű
eladó új építésű ikerház, Kerepes

eladó új építésű ikerház

Pest megye, Kerepes, Szilasliget
Eladó Kerepesen, csendes, aszfaltos utcában, ÚJ ÉPÍTÉSŰ, ENERGIATAKARÉKOS ikerház első lakása! BERUHÁZÓI ÁRON! OTTHON START hitel igénybe vehető! A lakás albetétesítve, társasházi alapító oki...
Belső terület
92 m²
Telek terület
250 m²
Szobák
4

92.9 M Ft

Új építésű!
Új építésű
eladó új építésű családi ház, Veresegyház

eladó új építésű családi ház

Pest megye, Veresegyház, (Öreghegy), Hajnal utca
Veresegyház egyik csendes részén, a Hajnal utcában kínálunk megvételre egy új építésű, modern kialakítású családi házat. Az ingatlan praktikus elrendezéssel, tágas közösségi terekkel és kényelmes h...
Belső terület
136 m²
Telek terület
698 m²
Szobák
4

121 M Ft

eladó új építésű sorház, Mogyoród

eladó új építésű sorház

Pest megye, Mogyoród, HÉV állomás környéke
OTTHON START, amíg még biztosan elérhető! Nyár végén költözhető, nappali + 4 hálós, 2 fürdős sorházi szélső (94.900.000,-) és középső (89.900.000,-) lakást kínálok megvételre, kifejezetten rugalmas...
Belső terület
99 m²
Telek terület
151 m²
Szobák
5

94.9 M Ft

eladó új építésű családi ház, Kiskunlacháza

eladó új építésű családi ház

Pest megye, Kiskunlacháza, Dunaparti üdülő
Pár percre a Dunától, önálló ház, akár 3% Otthon Start hitelre! Ha életérzést keres, akkor ez az ingatlan az Öné. Nyugalom, természet, vízpart egy helyen! Kiskunlacházán, a Dunától 100 méterre, cs...
Belső terület
112 m²
Telek terület
456 m²
Szobák
4

94.9 M Ft

Pest megye - Sződliget
Pest megye - Sződliget
Pest megye - Sződliget
Pest megye - Sződliget
Pest megye - Sződliget
Pest megye - Sződliget
Pest megye - Sződliget
Pest megye - Sződliget
Pest megye - Sződliget
Pest megye - Sződliget
Pest megye - Sződliget
Pest megye - Sződliget
Pest megye - Sződliget
Pest megye - Sződliget
Pest megye - Sződliget
Pest megye - Sződliget
Pest megye - Sződliget
Pest megye - Sződliget
Pest megye - Sződliget
Pest megye - Sződliget
Pest megye - Sződliget
Pest megye - Sződliget
Pest megye - Sződliget
Pest megye - Sződliget
Pest megye - Sződliget
Pest megye - Sződliget
Pest megye - Sződliget
Pest megye - Sződliget
Pest megye - Sződliget
Pest megye - Sződliget
Pest megye - Sződliget