Eladó új építésű ház - Erdőkertes

Új építésű!
Új építésű
KAPCSOLAT
Kiss Jutka


+36 20 334

arenaingatlanok@

Az időpont kérés naptár ikonja
IDŐPONTOT KÉREK
A visszahívás kérés telefon ikonja egy azt körbe ölelő nyíllal
VISSZAHÍVÁST KÉREK
Ajánlom egy ismerősömnek ikon
AJÁNLOM EGY ISMERŐSÖMNEK
Facebook megosztás ikon
MEGOSZTÁS

KAPCSOLATFELVÉTEL

Küldés

Az üzenetet sikeresen elküldtük!
Hiba történt!
INGATLAN ADATAI

Ingatlan jellege

családi ház

Belső terület

126 m²

Telek terület

1100 m²

Tájolás

délnyugat

Építési állapot

új

Építési mód

tégla

Szobák száma

5 szoba

Terasz

19 m²

Épület szintje

1.

Épült

2025

Ingatlan állapot

kívül: új
belül: új

Klíma

előkészítve

Szigetelés

15 cm

Ablak szerkezete

3 rétegű thermoplan

Fűtés

gázkazán

Komfort

duplakomfort

Parkolás

van fedetlen felszíni beálló

Közműállapot

csatorna: bekötve
gáz: bekötve
villany: bekötve
víz: bekötve

Energetika

nincs megadva

Az időpont kérés naptár ikonja
HTML
Az időpont kérés naptár ikonja
PDF
Eladó új építésű ház
Ingatlan azonosító:
1336_ar

Pest megye, Erdőkertes, Háromház

Irányár

94.9 M Ft
(753.17 E Ft/㎡)

Szobák

5 szoba

Terület

126 m²

Telek terület

1100 m²
INGATLAN LEÍRÁSA
Eladó ÚJ ÉPÍTÉSŰ családi ház Erdőkertesen!

BERUHÁZÓI ÁRON!

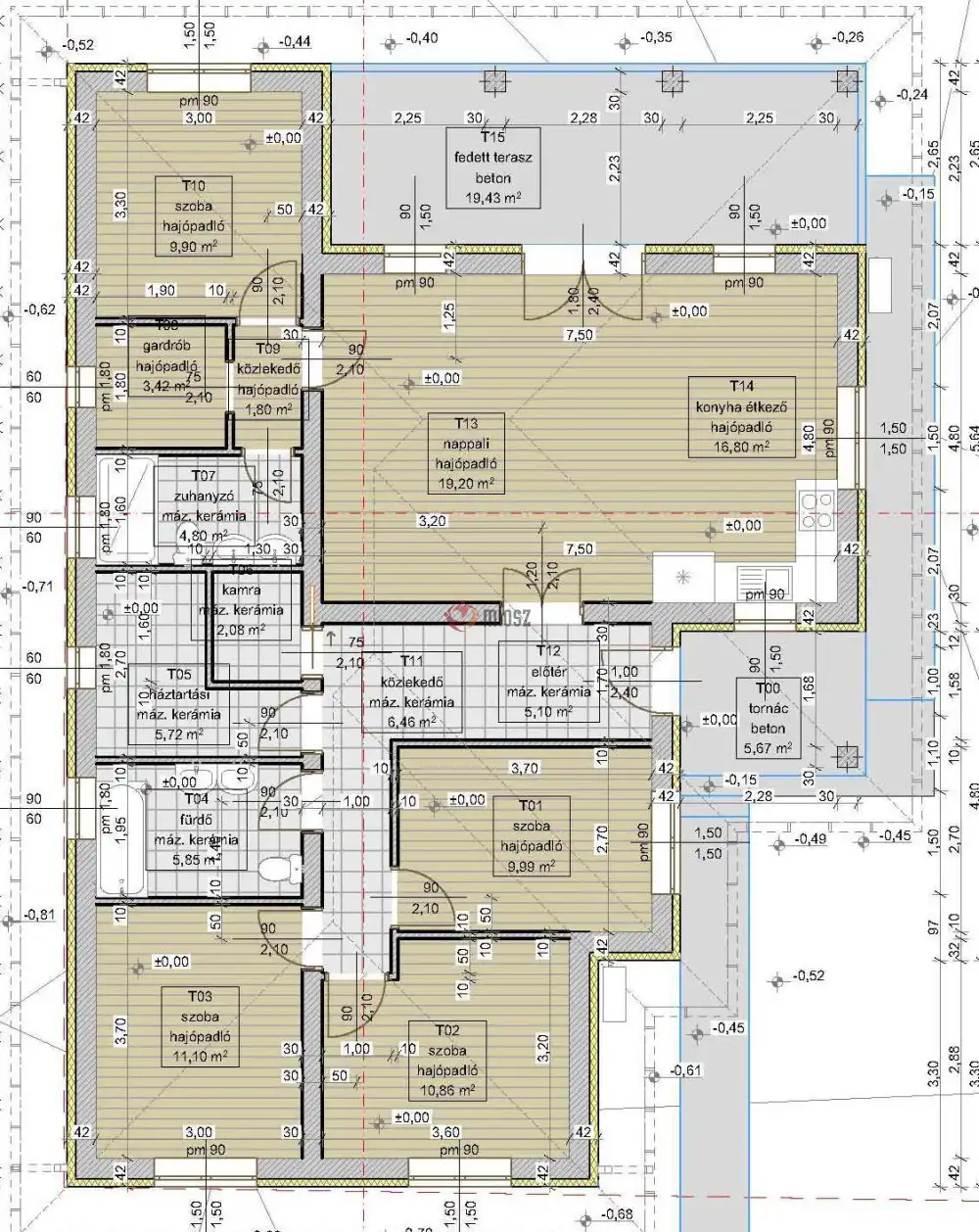
Eladó Erdőkertes Háromház részén nettó 113 nm-es, amerikai konyhás nappali + 4 szobás földszintes családi ház 1100 nm-es telekkel.

Jelenleg a telek tekinthető meg, így a BELSŐ TEREK KIALAKÍTÁSA – válaszfalak elhelyezése – igény szerint MÓDOSÍTHATÓ!

Az ingatlan térkialakítása kiváló, kényelmes életteret biztosít a mindennapokhoz:
- tágas amerikai konyhás nappali terasz (19 nm) kapcsolattal, 4 hálószoba, gardrób, 2 fürdőszoba, háztartási helyiség, kamra, előtér, közlekedő.

Az épület korszerű, a mai kor igényeinek megfelelő minőségi anyagokból és technológiával készül:
- a teherhordó falak 30-as Porotherm téglából, 15 cm-es hőszigeteléssel,
- betongerendás födém,
- 3 rétegű, hőszigetelt üvegezésű műanyag nyílászárók,
- fűtés gázkazán, padlófűtéssel, igény esetén – értékegyeztetéssel – hőszivattyús fűtés,
- 3 db klíma előkészítése,
- választható burkolatok, szaniterek, belső ajtók.

A vételár tartalmazza az utcafronti kerítést is.

Az alaprajz tájékoztató jellegű!

Az ingatlan aszfaltos utcából nyíló kis utcában, buszmegállótól egy perc sétányira fog épülni.

Ideális lehetőséget biztosít mindazok számára, akik a város közelségét és a nyugodt, zöld környezetet egyszerre szeretnék élvezni.

Hívjon a részletekért, a részletes műszaki tartalomért.

Irodánk ÚJ ÉPÍTÉSŰ ingatlanok specialistája, felkészült értékesítőkkel!
Jogi háttérrel (kedvező díjazással) és az egyik legjobb, bank semleges HITELKÖZVETÍTŐVEL segítjük vásárlását.
Hitelszakértőnk teljes körű ügyintézéssel áll Vevőink rendelkezésére, legyen szó OTTHON START, CSOK+, BABAVÁRÓ vagy a legjobb piaci hitelről.
Új építésű ingatlanjainkat BERUHÁZÓI ÁRON értékesítjük!

Amennyiben értékesíteni kívánja ingatlanát, irodánk egyedi, kedvező ajánlattal áll rendelkezésére!

Erdőkertes Veresegyház közvetlen szomszédságában fekvő, dinamikusan fejlődő, kellemes, nyugodt település. A mindennapi élethez szükséges bevásárlási lehetőség, iskola, óvoda, orvosi rendelő, gyógyszertár mind megtalálható, de a jó ellátottságot biztosítja még Veresegyház közelsége, ahol számos bevásárlási és kikapcsolódási lehetőség (üzletházak, piac, színház, horgásztó, medvepark, termálfürdő stb.) található.


INGATLAN ADATAI

Ingatlan jellege
családi ház
Belső terület
126 m²
Telek terület
1100 m²
Tájolás
délnyugat
Építési állapot
új
Építési mód
tégla
Szobák száma
5 szoba
Terasz
19 m²
Épület szintje
1.
Épült
2025
Ingatlan állapot
kívül: új
belül: új
Klíma
előkészítve
Szigetelés
15 cm
Ablak szerkezete
3 rétegű thermoplan
Fűtés
gázkazán
Komfort
duplakomfort
Parkolás
van fedetlen felszíni beálló
Közműállapot
csatorna: bekötve
gáz: bekötve
villany: bekötve
víz: bekötve
Energetika
nincs megadva
TÉRKÉP

Pest megye, Erdőkertes, Háromház

Hitelkalkulátor


KAPCSOLAT
Kiss Jutka
Kiss Jutka


+36 20 334 3328

arenaingatlanok@gmail.com

KAPCSOLAT
Kiss Jutka

+36 20 334

arenaingatlanok@

Az időpont kérés naptár ikonja
IDŐPONTOT KÉREK
A visszahívás kérés telefon ikonja egy azt körbe ölelő nyíllal
VISSZAHÍVÁST KÉREK
Ajánlom egy ismerősömnek ikon
AJÁNLOM EGY ISMERŐSÖMNEK
Facebook megosztás ikon
MEGOSZTÁS

KAPCSOLATFELVÉTEL

Küldés

Az üzenetet sikeresen elküldtük!
Hiba történt!
INGATLAN ADATAI

Ingatlan jellege

családi ház

Belső terület

126 m²

Telek terület

1100 m²

Tájolás

délnyugat

Építési állapot

új

Építési mód

tégla

Szobák száma

5 szoba

Terasz

19 m²

Épület szintje

1.

Épült

2025

Ingatlan állapot

kívül: új
belül: új

Klíma

előkészítve

Szigetelés

15 cm

Ablak szerkezete

3 rétegű thermoplan

Fűtés

gázkazán

Komfort

duplakomfort

Parkolás

van fedetlen felszíni beálló

Közműállapot

csatorna: bekötve
gáz: bekötve
villany: bekötve
víz: bekötve

Energetika

nincs megadva

Az időpont kérés naptár ikonja
HTML
Az időpont kérés naptár ikonja
PDF

Hasonló ingatlan hírdetések

Eladó új építésű családi ház, vagy kertes ház hirdetést keres Erdőkertes területén?
Tekintse meg további ajánlatainkat!

eladó új építésű családi ház, Erdőkertes

eladó új építésű családi ház

Pest megye, Erdőkertes, Topolyos
ERDŐKERTES CSENDES RÉSZÉN, 740 NM-ES TELEKRE ÉPÜLŐ, EGYSZINTES, BRUTTÓ 170, NETTÓ 114 NM-ES, NAPPALI + 4 SZOBÁS, DUPLA KOMFORTOS, 18 NM-ES FEDETT TERASSZAL, FELSZÍNI GÉPKOCSI BEÁLLÓVAL RENDELKEZŐ, DÉL...
Belső terület
114 m²
Telek terület
740 m²
Szobák
5

108.9 M Ft

eladó új építésű családi ház, Erdőkertes

eladó új építésű családi ház

Pest megye, Erdőkertes, Központ
*** KÖZPONTHOZ KÖZELI, ASZFALTOS UTCÁBAN *** Erdőkertes központhoz közeli részén, aszfaltos utcában, 1000 nm-es telekre épülő, egyszintes, nettó 113 nm-es, nappali + 4 szobás, dupla komfortos, 15 n...
Belső terület
113 m²
Telek terület
1000 m²
Szobák
5

114.9 M Ft

Új építésű!
Új építésű
eladó új építésű családi ház, Erdőkertes

eladó új építésű családi ház

Pest megye, Erdőkertes, Gézahegy
ERDŐKERTES CSALÁDI HÁZAS RÉSZÉN, 800 NM-ES SAROKTELEKRE ÉPÜLŐ, EGYSZINTES, NETTÓ 111 NM-ES, NAPPALI + 4 SZOBÁS, DUPLA KOMFORTOS, HŐSZIVATTYÚS, 13 NM-ES FEDETT TERASSZAL, GÉPKOCSI BEÁLLÓVAL RENDELKEZŐ,...
Belső terület
111 m²
Telek terület
800 m²
Szobák
5

109.9 M Ft

Új építésű!
Új építésű
eladó új építésű családi ház, Erdőkertes

eladó új építésű családi ház

Pest megye, Erdőkertes, Háromház
Eladó Erdőkertesen ÚJ ÉPÍTÉSŰ családi ház! BERUHÁZÓI ÁRON! Kiváló lehetőség Erdőkertesen: új építésű, amerikai konyhás nappali + 4 szobás, dupla komfortos családi ház várja új lakóit. Az elő...
Belső terület
119 m²
Telek terület
881 m²
Szobák
5

92.9 M Ft

Új építésű!
Új építésű
eladó új építésű családi ház, Erdőkertes

eladó új építésű családi ház

Pest megye, Erdőkertes
Modern családi otthon prémium kivitelezéssel! Erdőkertes egyik legkedveltebb, csendes részén kínálunk egy 108 m²-es, modern, A++ energetikájú családi otthont, ahol a tágas terek és a letisztult des...
Belső terület
108 m²
Telek terület
826 m²
Szobák
4

99.9 M Ft

eladó új építésű családi ház, Erdőkertes

eladó új építésű családi ház

Pest megye, Erdőkertes, Topolyos
Eladó ÚJ ÉPÍTÉSŰ családi ház Erdőkertesen! BERUHÁZÓI ÁRON! Hívjon most és költözzön tavasszal vadonatúj otthonába! Eladó Erdőkertesen, aszfaltos utcában, 816 nm-es telken épülő, amerikai kony...
Belső terület
117 m²
Telek terület
816 m²
Szobák
5

99.9 M Ft

Új építésű!
Új építésű
eladó új építésű családi ház, Erdőkertes

eladó új építésű családi ház

Pest megye, Erdőkertes, Kilencholdas
Eladó ÚJ ÉPÍTÉSŰ családi ház Erdőkertesen! BERUHÁZÓI ÁRON! HAMAROSAN KEZDŐDŐ ÉPÍTKEZÉS! A BELSŐ TEREK KIALAKÍTÁSA – válaszfalak elhelyezése – JELENLEG MÉG MÓDOSÍTHATÓ! Igény esetén – érték...
Belső terület
125 m²
Telek terület
775 m²
Szobák
5

99.9 M Ft

Új építésű!
Új építésű
eladó új építésű családi ház, Erdőkertes

eladó új építésű családi ház

Pest megye, Erdőkertes, Topolyos
Eladó Erdőkertes kedvelt, családi házas részén, aszfaltos utcában lévő, 816 nm-es saroktelekre épülő, egyszintes, nettó 110 nm-es, nappali + 4 szobás, dupla komfortos, gardróbos, FEDETT terasszal rend...
Belső terület
110 m²
Telek terület
816 m²
Szobák
5

99.9 M Ft

Pest megye - Erdőkertes
Pest megye - Erdőkertes
Pest megye - Erdőkertes