Eladó új építésű ház - Iszkaszentgyörgy

Új építésű!
Új építésű
KAPCSOLAT
Hajmási Márti


+36 20 252

hajmasi.marti@

Az időpont kérés naptár ikonja
IDŐPONTOT KÉREK
A visszahívás kérés telefon ikonja egy azt körbe ölelő nyíllal
VISSZAHÍVÁST KÉREK
Ajánlom egy ismerősömnek ikon
AJÁNLOM EGY ISMERŐSÖMNEK
Facebook megosztás ikon
MEGOSZTÁS

KAPCSOLATFELVÉTEL

Küldés

Az üzenetet sikeresen elküldtük!
Hiba történt!
INGATLAN ADATAI

Ingatlan jellege

családi ház

Belső terület

71 m²

Telek terület

500 m²

Tájolás

délnyugat

Építési állapot

új

Építési mód

könnyűszerkezetes

Szobák száma

3 szoba

Épület szintje

1.

Épült

2026

Ingatlan állapot

kívül: kitűnő
belül: kitűnő

Ablak szerkezete

3 rétegű thermoplan

Fűtés

padlófűtés

Komfort

összkomfort

Parkolás

van fedetlen felszíni beálló

Közműállapot

csatorna: bekötve
gáz: nincs
villany: bekötve
víz: bekötve

Energetika

nincs megadva

Az időpont kérés naptár ikonja
HTML
Az időpont kérés naptár ikonja
PDF
Eladó új építésű ház
Ingatlan azonosító:
169_rd

Fejér megye, Iszkaszentgyörgy, Petőfi Sándor utca

Irányár

64.99 M Ft
(915.35 E Ft/㎡)

Szobák

3 szoba

Terület

71 m²

Telek terület

500 m²
INGATLAN LEÍRÁSA
ISZKASZENTGYÖRGYÖN, FESTŐI KÖRNYEZETBEN, 507 NM-ES TELKEN, 22 NM-ES TERASSZAL, NETTÓ 71 NM-ES, 2 HÁLÓSZOBÁS, KÖNNYŰSZERKEZETES CSALÁDI HÁZ ELADÓ!

Ár: 64,99 M Ft. Tel.: 06 20 252 0622

Ha egy igazán bájos, barátságos és élhető otthont keresel a város zajától kicsit távolabb, de mégis elérhető közelségben, akkor ez az ingatlan a legtökéletesebb választás. Székesfehérvártól mindössze 15 perc autóútra, Iszkaszentgyörgy új építésű, csendes részén található ez a friss, modern ikerházfél, amely tökéletes menedék a rohanó hétköznapokból.

A nettó 71 nm-es, könnyűszerkezetes, új építésű családi ház nemcsak környezetbarát és energiatakarékos, de a kiváló ár-érték aránya miatt is remek választás. A praktikus elosztásnak köszönhetően minden helyiségnek megvan a maga szerepe – a 22 nm-es terasz pedig a nappali természetes meghosszabbítása, ahol egy kávé mellett tényleg átélhető a környék nyugalma.

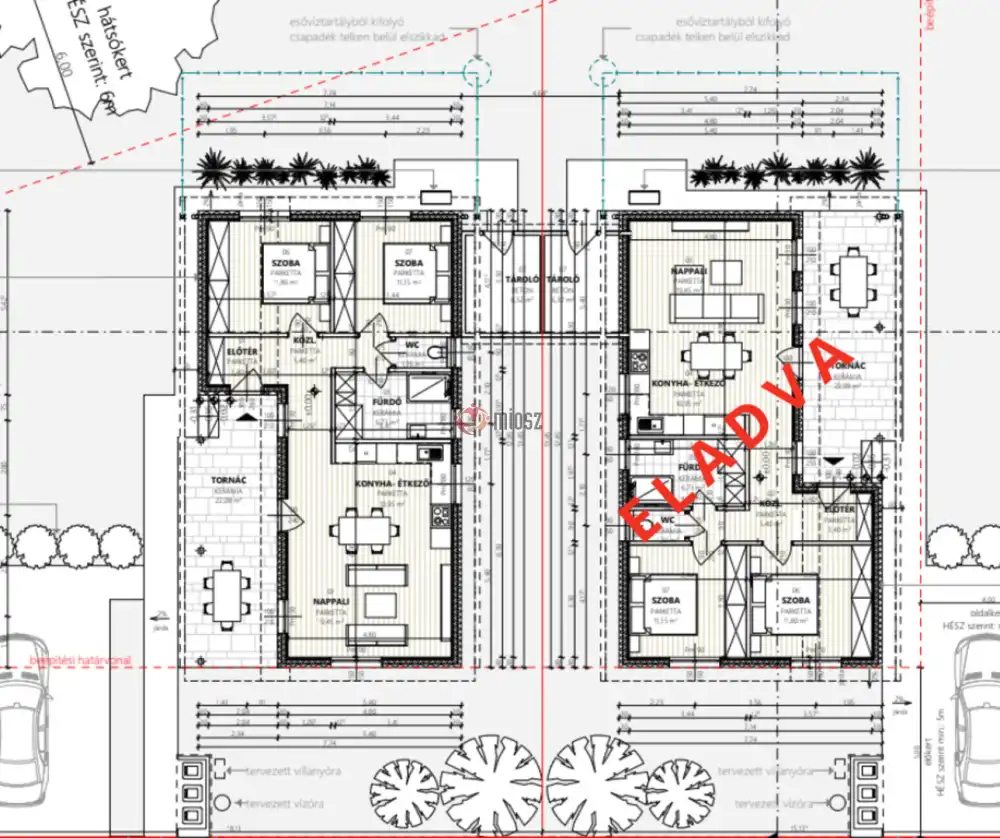
HELYISÉGEK
Terasz: 22 nm
Előtér: 3,4 nm
Fürdőszoba: 6,7 nm
Szoba 1: 11,8 nm
Szoba 2: 11,3 nm
Nappali–konyha–étkező: 31,8 nm

MŰSZAKI LEÍRÁS
Falazat (14,5 cm):
6×12 cm-es fa falszerkezet 62 cm-es osztással
12 cm formahabosított szigetelés
Kívül-belül 1,25 cm OSB burkolat

Belső válaszfalak:
12,5 mm RF gipszkarton
5×10 cm fa vázszerkezet
10 cm hang- és hőszigetelés
12,5 mm RF gipszkarton

Tető:
25 cm ISOCELL fújt cellulóz szigetelés
BRAMAC beton cserép fedéssel

Fűtés:
7–9 kW-os Panasonic/Daikin hőszivattyú
180 literes melegvíztároló
Vizes padlófűtés, 1 vezérelt zónával

Nyílászárók:
6 légkamrás, 3 rétegű üvegezés, műanyag, kívül-belül fehér kivitelben

KÖRNYEZET
A hátsó kertből kellemes kilátás nyílik a Vértesre, a környék pedig kimondottan nyugodt, csendes és természetközeli. Itt tényleg könnyű lelassulni, feltöltődni, és otthon érezni magad.

KIKNEK AJÁNLOTT?
• Fiatal pároknak, akik most vágnak bele a közös életbe
• Kisgyerekes családoknak, akiknek fontos a biztonságos, csendes környék
• Fiatal felnőtteknek, akik most repülnek ki a családi fészekből a NAGY betűs életbe

Ez az ingatlan nemcsak egy ház – hanem egy kényelmes, könnyen fenntartható, OTTHON, ahova jó megérkezni!

Ár: 64,99 M Ft. Tel.: 06 20 252 0622

INGATLAN ADATAI

Ingatlan jellege
családi ház
Belső terület
71 m²
Telek terület
500 m²
Tájolás
délnyugat
Építési állapot
új
Építési mód
könnyűszerkezetes
Szobák száma
3 szoba
Épület szintje
1.
Épült
2026
Ingatlan állapot
kívül: kitűnő
belül: kitűnő
Ablak szerkezete
3 rétegű thermoplan
Fűtés
padlófűtés
Komfort
összkomfort
Parkolás
van fedetlen felszíni beálló
Közműállapot
csatorna: bekötve
gáz: nincs
villany: bekötve
víz: bekötve
Energetika
nincs megadva
TÉRKÉP

Fejér megye, Iszkaszentgyörgy, Petőfi Sándor utca

Hitelkalkulátor


KAPCSOLAT
Hajmási Márti
Hajmási Márti


+36 20 252 0622

hajmasi.marti@redingatlan.hu

KAPCSOLAT
Hajmási Márti

+36 20 252

hajmasi.marti@

Az időpont kérés naptár ikonja
IDŐPONTOT KÉREK
A visszahívás kérés telefon ikonja egy azt körbe ölelő nyíllal
VISSZAHÍVÁST KÉREK
Ajánlom egy ismerősömnek ikon
AJÁNLOM EGY ISMERŐSÖMNEK
Facebook megosztás ikon
MEGOSZTÁS

KAPCSOLATFELVÉTEL

Küldés

Az üzenetet sikeresen elküldtük!
Hiba történt!
INGATLAN ADATAI

Ingatlan jellege

családi ház

Belső terület

71 m²

Telek terület

500 m²

Tájolás

délnyugat

Építési állapot

új

Építési mód

könnyűszerkezetes

Szobák száma

3 szoba

Épület szintje

1.

Épült

2026

Ingatlan állapot

kívül: kitűnő
belül: kitűnő

Ablak szerkezete

3 rétegű thermoplan

Fűtés

padlófűtés

Komfort

összkomfort

Parkolás

van fedetlen felszíni beálló

Közműállapot

csatorna: bekötve
gáz: nincs
villany: bekötve
víz: bekötve

Energetika

nincs megadva

Az időpont kérés naptár ikonja
HTML
Az időpont kérés naptár ikonja
PDF

Hasonló ingatlan hírdetések

Eladó új építésű családi ház, vagy kertes ház hirdetést keres Iszkaszentgyörgy területén?
Tekintse meg további ajánlatainkat!

eladó új építésű családi ház, Iszkaszentgyörgy

eladó új építésű családi ház

Fejér megye, Iszkaszentgyörgy, Iszkai utca
ISZKASZENTGYÖRGY, ÚJ ÉPÍTÉSŰ, BRUTTÓ 68,25 nm-ES HÁZ 1000 nm-ES TELKEN, 2 SZOBA + NAPPALI–KONYHA–ÉTKEZŐ elrendezésű ÁTADÁS: 2026 DECEMBER I.ár: 62.9 M Ft Fontos: A képek referencia házról kés...
Belső terület
68 m²
Telek terület
1000 m²
Szobák
1+1

62.9 M Ft

eladó ikerház, Iszkaszentgyörgy

eladó ikerház

Fejér megye, Iszkaszentgyörgy
ISZKASZENTGYÖRGY CSENDES RÉSZÉN – ÚJ ÉPÍTÉSŰ, HŐSZIVATTYÚS, PADLÓFŰTÉSES IKERHÁZFÉL ELADÓ! Telek mérete: 480 nm Lakótér (bruttó): 113 m² + 8,4 m² tároló Szobák száma: 3 + amerikai konyhás nappali...
Belső terület
113 m²
Telek terület
480 m²
Szobák
4

79.9 M Ft

Új építésű!
Új építésű
eladó ikerház, Iszkaszentgyörgy

eladó ikerház

Fejér megye, Iszkaszentgyörgy
ISZKASZENTGYÖRGY LEGBÉKÉSEBB RÉSZÉN, ÚJ ÉPÍTÉSŰ, HŐSZIVATTYÚS, PADLÓFŰTÉSES IKERHÁZ FÉL, 113 NM LAKÓTÉR, 3 KÜLÖN NYÍLÓ SZOBA, AMERIKAI KONYHA-NAPPALI, 628 NM SAJÁT TELEKKEL, ELADÓ! Ár: 81,9 M Ft ...
Belső terület
113 m²
Telek terület
628 m²
Szobák
4

81.9 M Ft

eladó új építésű családi ház, Iszkaszentgyörgy

eladó új építésű családi ház

Fejér megye, Iszkaszentgyörgy, Petőfi Sándor utca
ISZKASZENTGYÖRGY LEGBÉKÉSEBB RÉSZÉN, ÚJ ÉPÍTÉSŰ, HŐSZIVATTYÚS, PADLÓFŰTÉSES ÖNÁLLÓ CSALÁDI HÁZ, NETTÓ 104 NM-ES, 3 KÜLÖN NYÍLÓ SZOBA, AMERIKAI KONYHA-NAPPALI, 1100 NM SAJÁT TELEKKEL, ELADÓ! Ár: 95 ...
Belső terület
104 m²
Telek terület
1100 m²
Szobák
5

95 M Ft

eladó új építésű családi ház, Iszkaszentgyörgy

eladó új építésű családi ház

Fejér megye, Iszkaszentgyörgy, Kisiszka hegyi út
Eladó új építésű családi ház Iszkaszentgyörgy csendes részén! Iszkaszentgyörgy település Kisiszkahegyi részén, nyugodt, természetközeli környezetben kínálunk megvételre egy kiváló adottságokkal ren...
Belső terület
130 m²
Telek terület
1200 m²
Szobák
4

99 M Ft

Fejér megye - Iszkaszentgyörgy
Fejér megye - Iszkaszentgyörgy
Fejér megye - Iszkaszentgyörgy
Fejér megye - Iszkaszentgyörgy
Fejér megye - Iszkaszentgyörgy
Fejér megye - Iszkaszentgyörgy
Fejér megye - Iszkaszentgyörgy
Fejér megye - Iszkaszentgyörgy
Fejér megye - Iszkaszentgyörgy
Fejér megye - Iszkaszentgyörgy
Fejér megye - Iszkaszentgyörgy
Fejér megye - Iszkaszentgyörgy
Fejér megye - Iszkaszentgyörgy