Eladó új építésű ház - Tatabánya

Új építésű!
Új építésű
KAPCSOLAT
dr. Sándli Zsolt


+36 20 461

info@

Az időpont kérés naptár ikonja
IDŐPONTOT KÉREK
A visszahívás kérés telefon ikonja egy azt körbe ölelő nyíllal
VISSZAHÍVÁST KÉREK
Ajánlom egy ismerősömnek ikon
AJÁNLOM EGY ISMERŐSÖMNEK
Facebook megosztás ikon
MEGOSZTÁS

KAPCSOLATFELVÉTEL

Küldés

Az üzenetet sikeresen elküldtük!
Hiba történt!
INGATLAN ADATAI

Ingatlan jellege

családi ház

Belső terület

83 m²

Telek terület

217 m²

Tájolás

délnyugat

Építési állapot

új

Építési mód

tégla

Szobák száma

3 szoba

Erkély

8.53 m²

Terasz

8.63 m²

Épület szintje

2.

Épült

2027

Ingatlan állapot

kívül: új
belül: új

Klíma

előkészítve

Szigetelés

20 cm

Ablak szerkezete

3 rétegű thermoplan

Fűtés

hőszivattyús

Komfort

összkomfort

Parkolás

van fedetlen felszíni beálló

Közműállapot

csatorna: bekötve
gáz: utcában
villany: bekötve
víz: bekötve

Energetika

A:

Az időpont kérés naptár ikonja
HTML
Az időpont kérés naptár ikonja
PDF
Eladó új építésű ház
Belső azonosító:
56329
Ingatlan azonosító:
4167_ko

Komárom-Esztergom megye, Tatabánya, (Panoráma lakópark), Boróka utca

Irányár

89.9 M Ft
(1.08 M Ft/㎡)

Szobák

3 szoba

Terület

83 m²

Telek terület

217 m²
INGATLAN LEÍRÁSA
KIZÁRÓLAG IRODÁNKNÁL!
Kulcsrakész, modern, kétszintes új építésű sorházi lakás Tatabányán – ideális befektetésnek és első otthonnak!

Tatabánya kedvelt részén, a Panoráma lakóparkban, a Boróka utcában kínáljuk megvételre ezt a kétszintes, új építésű, négylakásos sorházban található lakást. Logikus térszervezésének és nagy üvegfelületeinek köszönhetően kivételesen világos, élhető otthont biztosít.
A lakáshoz tartozó telekhányad 217,1 m², melyből 162 m² a saját használatú kertrész, tökéletes választás kisgyermekeseknek, kutyásoknak vagy akinek fontos a zöldterület. Az erkélyről csodálatos kilátás nyílik a Gerecsére, látható a Ranzinger Vincze kilátó, a Szelim-barlang és a Turul madár is.

Főbb adatok:
Nettó lakóterület: 83 m²
Szobák száma: 3 (nappali + 2 hálószoba)
Teraszok: 1 fedett terasz + 1 fedett erkély (földszint + emelet)
Parkolás: saját felszíni gépkocsibeálló

Praktikus elrendezés a kényelmes mindennapokra
Földszint:
– előtér: 6,6 m²
– külön WC: 1,6 m²
– háztartási helyiség: 4,94 m²
– kamra: 1,22 m²
– nappali + konyha-étkező: 25,44 m²
– fedett terasz: 8,53 m²
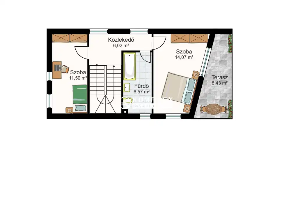
Emelet:
– közlekedő: 6,02 m²
– két külön nyíló hálószoba: 11,5 és 14,07 m²
– fürdőszoba: 6,76 m²
– fedett erkély: 8,43 m²

Műszaki tartalom – hosszú távra tervezve
– Porotherm 30-as téglafalazat
– 20 cm homlokzati hőszigetelés
– 3 rétegű, hőszigetelt nyílászárók
– modern tetőszerkezet sötétszürke héjazattal

Energiatakarékos, alacsony fenntartású otthon:
– hőszivattyús fűtési rendszer padlófűtéssel, akár mennyezethűtési lehetőséggel is (felár ellenében) és napelem előkészítéssel.

A Panoráma lakópark Tatabánya egyik leggyorsabban fejlődő, családbarát városrésze. A környezet rendezett, csendes, zöldövezeti hangulatú, ugyanakkor minden fontos szolgáltatás gyorsan elérhető:
– kiváló közlekedés, az M1 autópálya percek alatt elérhető
– üzletek, óvoda, iskola, gyógyszertár, közintézmények a közelben

Ez a lakás fiatal pároknak, első lakásvásárlóknak és befektetőknek is kitűnő választás.

Hitel- és CSOK Plusz ügyintézésben díjmentesen segítünk, hogy a lehető legkedvezőbb feltételekkel vásárolhassa meg új otthonát!

INGATLAN ADATAI

Ingatlan jellege
családi ház
Belső terület
83 m²
Telek terület
217 m²
Tájolás
délnyugat
Építési állapot
új
Építési mód
tégla
Szobák száma
3 szoba
Erkély
8.53 m²
Terasz
8.63 m²
Épület szintje
2.
Épült
2027
Ingatlan állapot
kívül: új
belül: új
Klíma
előkészítve
Szigetelés
20 cm
Ablak szerkezete
3 rétegű thermoplan
Fűtés
hőszivattyús
Komfort
összkomfort
Parkolás
van fedetlen felszíni beálló
Közműállapot
csatorna: bekötve
gáz: utcában
villany: bekötve
víz: bekötve
Energetika
A:
TÉRKÉP

Komárom-Esztergom megye, Tatabánya, Boróka utca

Hitelkalkulátor


KAPCSOLAT
dr. Sándli  Zsolt
dr. Sándli Zsolt


+36 20 461 5700

info@komplexingatlan.com

KAPCSOLAT
dr. Sándli Zsolt

+36 20 461

info@

Az időpont kérés naptár ikonja
IDŐPONTOT KÉREK
A visszahívás kérés telefon ikonja egy azt körbe ölelő nyíllal
VISSZAHÍVÁST KÉREK
Ajánlom egy ismerősömnek ikon
AJÁNLOM EGY ISMERŐSÖMNEK
Facebook megosztás ikon
MEGOSZTÁS

KAPCSOLATFELVÉTEL

Küldés

Az üzenetet sikeresen elküldtük!
Hiba történt!
INGATLAN ADATAI

Ingatlan jellege

családi ház

Belső terület

83 m²

Telek terület

217 m²

Tájolás

délnyugat

Építési állapot

új

Építési mód

tégla

Szobák száma

3 szoba

Erkély

8.53 m²

Terasz

8.63 m²

Épület szintje

2.

Épült

2027

Ingatlan állapot

kívül: új
belül: új

Klíma

előkészítve

Szigetelés

20 cm

Ablak szerkezete

3 rétegű thermoplan

Fűtés

hőszivattyús

Komfort

összkomfort

Parkolás

van fedetlen felszíni beálló

Közműállapot

csatorna: bekötve
gáz: utcában
villany: bekötve
víz: bekötve

Energetika

A:

Az időpont kérés naptár ikonja
HTML
Az időpont kérés naptár ikonja
PDF

Hasonló ingatlan hírdetések

Eladó új építésű családi ház, vagy kertes ház hirdetést keres Tatabánya területén?
Tekintse meg további ajánlatainkat!

eladó új építésű családi ház, Tatabánya

eladó új építésű családi ház

Komárom-Esztergom megye, Tatabánya, (Panoráma lakópark), Boróka
Csak a Komplex Ingatlan kínálatában: Tatabányán, a Panoráma lakóparkban, családi házas környezetben, 4 db új építésű, modern, energiatakarékos lakóingatlan kerül megépítésre, melyek közül most még le...
Belső terület
84 m²
Telek terület
217 m²
Szobák
3

89.9 M Ft

eladó új építésű sorház, Tatabánya

eladó új építésű sorház

KIZÁRÓLAG IRODÁNKNÁL! Kulcsrakész, modern, kétszintes új építésű sorházi lakás Tatabányán – ideális otthonnak!

Komárom-Esztergom megye, Tatabánya, (Panoráma lakópark), Boróka utca
KIZÁRÓLAG IRODÁNKNÁL! Kulcsrakész, modern, kétszintes új építésű sorházi lakás Tatabányán – ideális befektetésnek és első otthonnak! Tatabánya kedvelt részén, a Panoráma lakóparkban, a Boróka utcá...
Belső terület
114 m²
Telek terület
218 m²
Szobák
4

129.75 M Ft

Új építésű!
Új építésű
eladó családi ház, Tatabánya

eladó családi ház

Tatabánya, Bánhida kedvelt részén egy 114 m2nagyságú napelemes családi ház eladó!

Komárom-Esztergom megye, Tatabánya, Bánhida
Komplex Ingatlan iroda megvételre kínál Tatabánya Bánhida kedvelt részén egy 114 m2 nagyságú ikerházat, amely egy 286 m2-es telken helyezkedik el. Álmaid otthonát keresed, nyugodt csendes környezet...
Belső terület
114 m²
Telek terület
286 m²
Szobák
4

89.99 M Ft

eladó ikerház, Tatabánya

eladó ikerház

Komárom-Esztergom megye, Tatabánya
Kitűnő elosztású, energiatakarékos, újszerű ikerház eladó Bánhidán! Tatabánya – Bánhida családi házas övezetében 2011-ben épült, minden igényt kielégítő, 114 nm-es, kétszintes ikerház, 286 nm-es te...
Belső terület
114 m²
Telek terület
286 m²
Szobák
3+1

90 M Ft

Komárom-Esztergom megye - Tatabánya
Komárom-Esztergom megye - Tatabánya
Komárom-Esztergom megye - Tatabánya
Komárom-Esztergom megye - Tatabánya
Komárom-Esztergom megye - Tatabánya
Komárom-Esztergom megye - Tatabánya
Komárom-Esztergom megye - Tatabánya
Komárom-Esztergom megye - Tatabánya
Komárom-Esztergom megye - Tatabánya