Eladó új építésű ház - Veszprémvarsány

KAPCSOLAT
Kovács Eszter


+36 20 397

kovacs.eszter@

Az időpont kérés naptár ikonja
IDŐPONTOT KÉREK
A visszahívás kérés telefon ikonja egy azt körbe ölelő nyíllal
VISSZAHÍVÁST KÉREK
Ajánlom egy ismerősömnek ikon
AJÁNLOM EGY ISMERŐSÖMNEK
Facebook megosztás ikon
MEGOSZTÁS

KAPCSOLATFELVÉTEL

Küldés

Az üzenetet sikeresen elküldtük!
Hiba történt!
INGATLAN ADATAI

Ingatlan jellege

családi ház

Belső terület

88 m²

Telek terület

812 m²

Tájolás

délkelet

Építési állapot

új

Építési mód

tégla

Szobák száma

1+3 félszoba

Terasz

14.7 m²

Épület szintje

1.

Épült

kb. 2026

Ingatlan állapot

kívül: új
belül: új

Szigetelés

20 cm

Ablak szerkezete

3 rétegű thermoplan

Fűtés

gázkazán

Komfort

összkomfort

Közműállapot

csatorna: bekötve
gáz: bekötve
villany: bekötve
víz: bekötve

Energetika

nincs megadva

Az időpont kérés naptár ikonja
HTML
Az időpont kérés naptár ikonja
PDF
Eladó új építésű ház
Ingatlan azonosító:
4153_ko

Győr-Moson-Sopron megye, Veszprémvarsány

Irányár

75 M Ft + Áfa
(852.27 E Ft/㎡) + Áfa

Szobák

1+3 félszoba

Terület

88 m²

Telek terület

812 m²
INGATLAN LEÍRÁSA
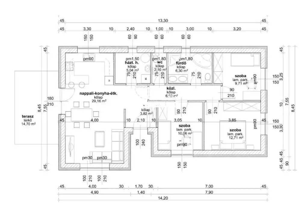
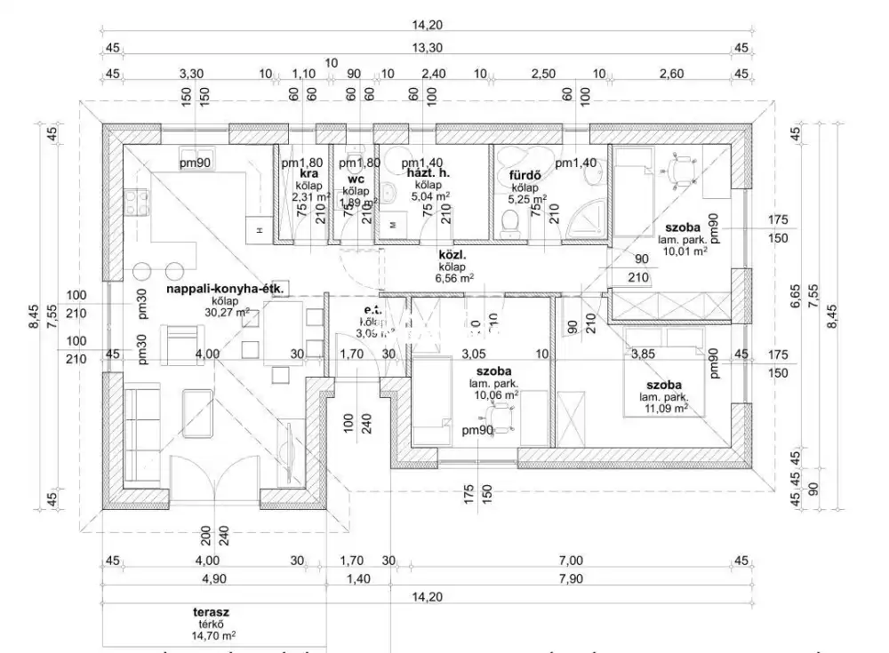
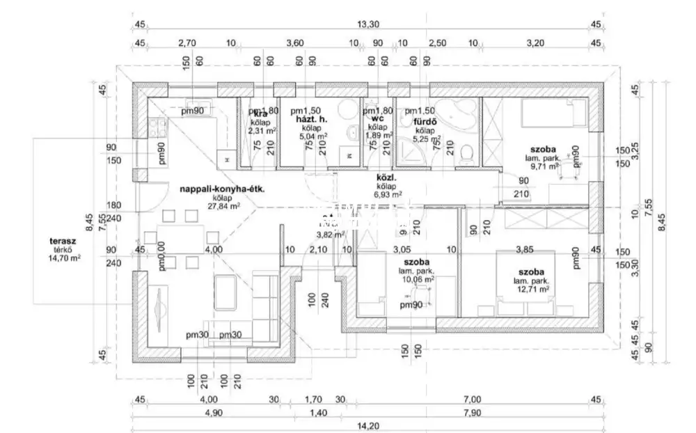
Új építésű családi ház eladó Veszprémvarsányban

A Komplex Ingatlaniroda megvételre kínálja Veszprémvarsány csendes, családi házas övezetében ezt az új építésű családi házat, amely egy 812 m²-es saroktelken helyezkedik el, így két utcáról is megközelíthető.
A projekt különlegessége, hogy 4 különböző alaprajz közül választhat, így az ingatlan a leendő tulajdonos élethelyzetéhez és igényeihez igazítható. A hirdetésben szereplő ár emelt szintű fűtéskész állapotra vonatkozik, ami a választott műszaki tartalom függvényében változhat, így lehetőséget ad az egyedi igények szerinti kialakításra is.

Főbb jellemzők
• Ingatlan típusa: új építésű családi ház
• Elhelyezkedés: családi házas övezet, falusias jelleg
• Telek mérete: 812 m², saroktelek
• Alaprajz: 4 választható kialakítás
• Készültségi szint: emelt szintű fűtéskész

Az ingatlan ideális választás azok számára, akik új, modern otthont keresnek nyugodt környezetben, ugyanakkor fontos számukra az alakíthatóság és az értékálló műszaki megoldások.

Ez a lehetőség nem kompromisszum, hanem egy rugalmasan alakítható, hosszú távra tervezhető otthon megvalósítása.

További információért és az elérhető alaprajzok megtekintéséért keressen bizalommal!

Irodánk díjmentesen segít hitel- és támogatás ügyintézés során, hogy Ön könnyedén megtalálja a legjobb pénzügyi megoldásokat.


INGATLAN ADATAI

Ingatlan jellege
családi ház
Belső terület
88 m²
Telek terület
812 m²
Tájolás
délkelet
Építési állapot
új
Építési mód
tégla
Szobák száma
1+3 félszoba
Terasz
14.7 m²
Épület szintje
1.
Épült
kb. 2026
Ingatlan állapot
kívül: új
belül: új
Szigetelés
20 cm
Ablak szerkezete
3 rétegű thermoplan
Fűtés
gázkazán
Komfort
összkomfort
Közműállapot
csatorna: bekötve
gáz: bekötve
villany: bekötve
víz: bekötve
Energetika
nincs megadva
TÉRKÉP

Győr-Moson-Sopron megye, Veszprémvarsány

Hitelkalkulátor


KAPCSOLAT
Kovács Eszter
Kovács Eszter


+36 20 397 0776

kovacs.eszter@komplexingatlan.com

KAPCSOLAT
Kovács Eszter

+36 20 397

kovacs.eszter@

Az időpont kérés naptár ikonja
IDŐPONTOT KÉREK
A visszahívás kérés telefon ikonja egy azt körbe ölelő nyíllal
VISSZAHÍVÁST KÉREK
Ajánlom egy ismerősömnek ikon
AJÁNLOM EGY ISMERŐSÖMNEK
Facebook megosztás ikon
MEGOSZTÁS

KAPCSOLATFELVÉTEL

Küldés

Az üzenetet sikeresen elküldtük!
Hiba történt!
INGATLAN ADATAI

Ingatlan jellege

családi ház

Belső terület

88 m²

Telek terület

812 m²

Tájolás

délkelet

Építési állapot

új

Építési mód

tégla

Szobák száma

1+3 félszoba

Terasz

14.7 m²

Épület szintje

1.

Épült

kb. 2026

Ingatlan állapot

kívül: új
belül: új

Szigetelés

20 cm

Ablak szerkezete

3 rétegű thermoplan

Fűtés

gázkazán

Komfort

összkomfort

Közműállapot

csatorna: bekötve
gáz: bekötve
villany: bekötve
víz: bekötve

Energetika

nincs megadva

Az időpont kérés naptár ikonja
HTML
Az időpont kérés naptár ikonja
PDF

Hasonló ingatlan hírdetések

Eladó új építésű családi ház, vagy kertes ház hirdetést keres Veszprémvarsány területén?
Jelenleg nincsenek hasonló aktuális ajánlatok Veszprémvarsány településen.
Tekintse meg további Győr-Moson-Sopron megyei ajánlatainkat !

eladó új építésű sorház, Győr

eladó új építésű sorház

Győr-Moson-Sopron megye, Győr, Szitásdomb
Családi ház, sorház – Győr Szitásdomb II. A Komplex Ingatlaniroda megvételre kínálja Győr egyik legdinamikusabban fejlődő környezetében, a Szitásdomb II. lakóparkban (közigazgatásilag Vámosszabadi...
Belső terület
112 m²
Telek terület
303 m²
Szobák
2+2

108 M Ft

eladó családi ház, Mosonmagyaróvár

eladó családi ház

Győr-Moson-Sopron megye, Mosonmagyaróvár, Duna lakópark
Exkluzív családi ház eladó Mosonmagyaróváron – Duna-Liget lakópark, többfunkciós kialakítással A Komplex Ingatlaniroda kínálatában elérhető Mosonmagyaróváron, a Duna-Liget lakópark rendezett, nyugo...
Belső terület
156 m²
Telek terület
709 m²
Szobák
4

169 M Ft

eladó új építésű családi ház, Levél

eladó új építésű családi ház

Eladó családi ház Levélen! ???? Kiváló közlekedéssel, nyugodt környéken várja új tulajdonosát ez a remek lehetőség! Álmai otthona lehet 80 millió forintért! Áttekinthető, tágas terek és kényelmes elrendezés várja Önt Levél csendes részén, Győr közelében. Ne hagyja ki! ???? #ingatlan #Levél #családiház

Győr-Moson-Sopron megye, Levél, Petőfi Sándor utca
Otthonos családi ház Levél központi részén eladó! Levélen, Győr-Moson-Sopron megyében kínálok megvételre egy jól megközelíthető 92m2(nettó 82m2) fűtéskész családi házat . Az ingatlan kiváló tömegk...
Belső terület
92 m²
Telek terület
300 m²
Szobák
4

80 M Ft

Új építésű!
Új építésű
eladó új építésű családi ház, Levél

eladó új építésű családi ház

Kivételes lehetőség Levélen! ???? Igazi családi fészek kétszintes kialakítással, remek közlekedéssel. A modern, tágas elrendezés minden család álma! ???? Ne szalaszd el, tapasztald meg te is a nyugodt, harmonikus vidéki életérzést. ???????? #EladóHáz #Levél

Győr-Moson-Sopron megye, Levél, Petőfi Sándor utca
Tágas, kétszintes családi ház Levél központi részén Az eladásra kínált 92m2(nettó:82m2) ingatlan Levél településen, Győr-Moson-Sopron megyében található, csendes, harmonikus környezetben. A két szi...
Belső terület
92 m²
Telek terület
200 m²
Szobák
4

90 M Ft

Új építésű!
Új építésű
eladó családi ház, Harka

eladó családi ház

Győr-Moson-Sopron megye, Harka
Harka külterületén, mesés környezetben, távol a város nyüzsgésétől, eladó egy 40.270m2-es területre épített bruttó 290m2, nettó:3x80m2-es, 3 szintes, alápincézett, teljesen önellátó ingatlan, amely ...
Belső terület
160 m²
Telek terület
40270 m²
Szobák
4

370 M Ft

azonnal költözhető
Azonnal költözhető
eladó családi ház, Mindszentpuszta

eladó családi ház

Győr-Moson-Sopron megye, Mindszentpuszta
Új Építésű Ingatlanok Egyedülálló Ajánlatként Mindszentpusztán! Örömmel mutatjuk be az ideális otthont az Ön számára. Öt gyönyörű nagy méretű telken, a festői Mindszentpusztán, Győrtől rövid távolság...
Belső terület
120 m²
Telek terület
1774 m²
Szobák
2

95 M Ft

eladó családi ház, Mosonmagyaróvár

eladó családi ház

Győr-Moson-Sopron megye, Mosonmagyaróvár
...
Belső terület
85 m²
Telek terület
350 m²
Szobák
3

122 M Ft

Győr-Moson-Sopron megye - Veszprémvarsány
Győr-Moson-Sopron megye - Veszprémvarsány
Győr-Moson-Sopron megye - Veszprémvarsány
Győr-Moson-Sopron megye - Veszprémvarsány
Győr-Moson-Sopron megye - Veszprémvarsány
Győr-Moson-Sopron megye - Veszprémvarsány
Győr-Moson-Sopron megye - Veszprémvarsány
Győr-Moson-Sopron megye - Veszprémvarsány
Győr-Moson-Sopron megye - Veszprémvarsány
Győr-Moson-Sopron megye - Veszprémvarsány
Győr-Moson-Sopron megye - Veszprémvarsány