KAPCSOLATFELVÉTEL
Ingatlan jellege
ikerház
Belső terület
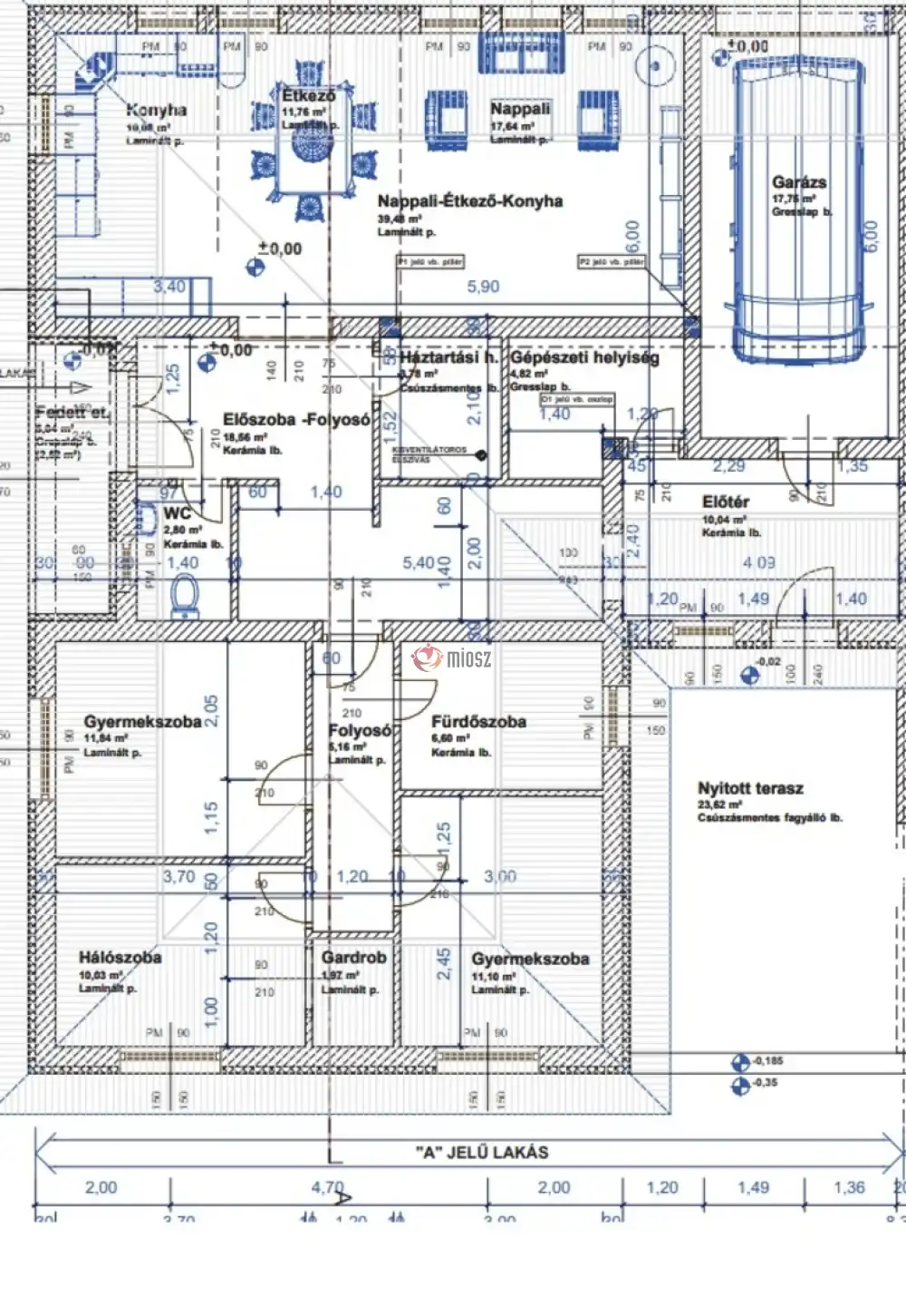
160 m²
Telek terület
580 m²
Tájolás
dél, délnyugat
Építési állapot
új
Építési mód
tégla
Szobák száma
4 szoba
Terasz
23.62 m²
Épület szintje
földszintes.
Épült
2025
Akadálymentes
igen
Ingatlan állapot
kívül: új
belül: új
Klíma
van
Szigetelés
15 cm
Ablak szerkezete
3 rétegű thermoplan
Fűtés
hőszivattyús
Komfort
összkomfort
Közműállapot
csatorna: bekötve
gáz: utcában
villany: bekötve
víz: bekötve
Energetika
A+ 2024:
Tolna megye, Dunaföldvár, Pipacs utca
Irányár
(1.1 M Ft/㎡)
Szobák
Terület
Telek terület
A 160 m2-es ikerházban 3 hálószoba, egy tágas és világos amerikai konyhás nappali, fürdőszoba, WC, garázs és egy saját kert biztosítja a leendő lakók kényelmét.
A ház modern, a mai igényeknek megfelelő belső kialakítás szerint a legjobb építőanyagok felhasználásával és jó referenciákkal rendelkező szakemberek által kerül kivitelezésre.
Energetikai besorolás A+
- A fűtést és hűtést hőszivattyú fogja biztosítani padlófűtés és helyiségenként fan-coilok segítségével.
- Háromrétegű, hőszigetelt üveggel szerelt prémium minőségű fa nyílászárók kerülnek beépítésre.
- 15cm homlokzati hőszigetelés kerül a falakra és 30 cm kőzetgyapot födém szigetelés kerül beépítlésre.
A hirdetési ár tartalmazza:
- A látványtervek szerint elkészített külső és belső kialakítást.
- Minden ablak elektromos aluminium redőnyökkel felszerelve.
- A képeken látható prémium minőségű burkolatokkal burkolva, fehérre festett falakkal, belső ajtókkal és prémium szaniterekkel felszerelve.
- Füvesített kert kerül kialakításra.
Igény szerint az ingatlan megvásárolható a belsőépítész által tervezett egyedi bútorokkal berendezve kulcsrakészen is.
A házban jelenleg a belső tér befejező munkálatai zajlanak, így érdeklődés esetén lehetséges a személyes megtekintés.
Várható átadás: 2026.február-március.
Az ingatlan megvásárlására Otthon Start 3%-os hitelprogramban kedvezményes hitel igényelhető.
belül: új
gáz: utcában
villany: bekötve
víz: bekötve
Tolna megye, Dunaföldvár, Pipacs utca
Hitelkalkulátor

+36 30 517 2623
gorogzoltan@ingatlanpaks.hu
KAPCSOLATFELVÉTEL
Ingatlan jellege
ikerház
Belső terület
160 m²
Telek terület
580 m²
Tájolás
dél, délnyugat
Építési állapot
új
Építési mód
tégla
Szobák száma
4 szoba
Terasz
23.62 m²
Épület szintje
földszintes.
Épült
2025
Ingatlan állapot
kívül: új
belül: új
Klíma
van
Szigetelés
15 cm
Ablak szerkezete
3 rétegű thermoplan
Fűtés
hőszivattyús
Komfort
összkomfort
Közműállapot
csatorna: bekötve
gáz: utcában
villany: bekötve
víz: bekötve
Energetika
A+ 2024: