Eladó új építésű ikerház - Dunakeszi

KAPCSOLAT
Kovács Barbara


+36 30 915

proluxingatlaniroda@

Az időpont kérés naptár ikonja
IDŐPONTOT KÉREK
A visszahívás kérés telefon ikonja egy azt körbe ölelő nyíllal
VISSZAHÍVÁST KÉREK
Ajánlom egy ismerősömnek ikon
AJÁNLOM EGY ISMERŐSÖMNEK
Facebook megosztás ikon
MEGOSZTÁS

KAPCSOLATFELVÉTEL

Küldés

Az üzenetet sikeresen elküldtük!
Hiba történt!
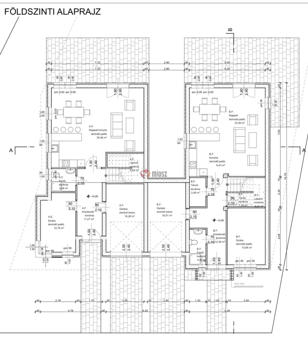
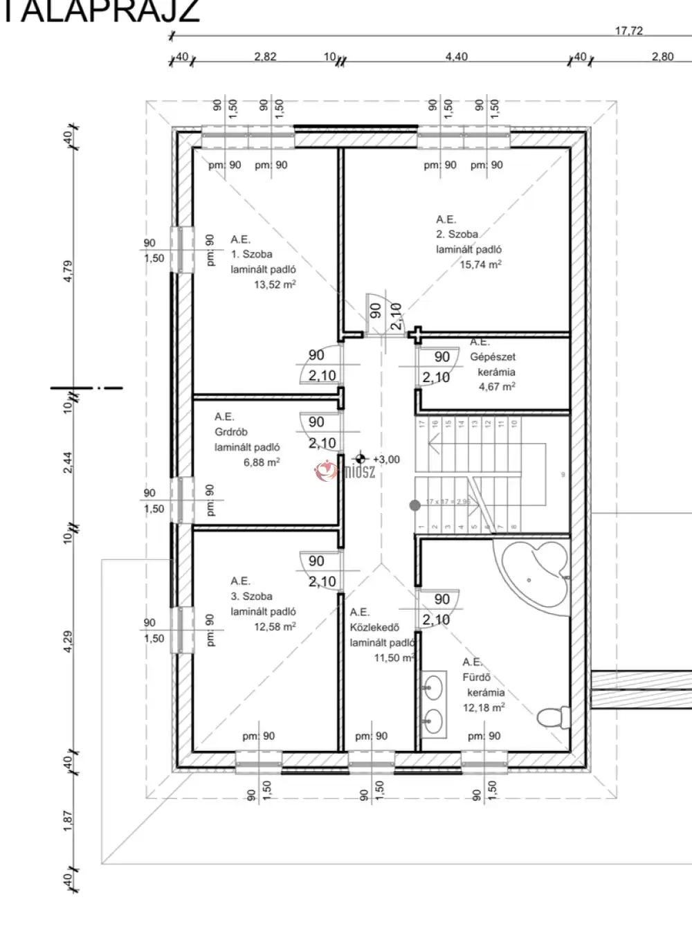
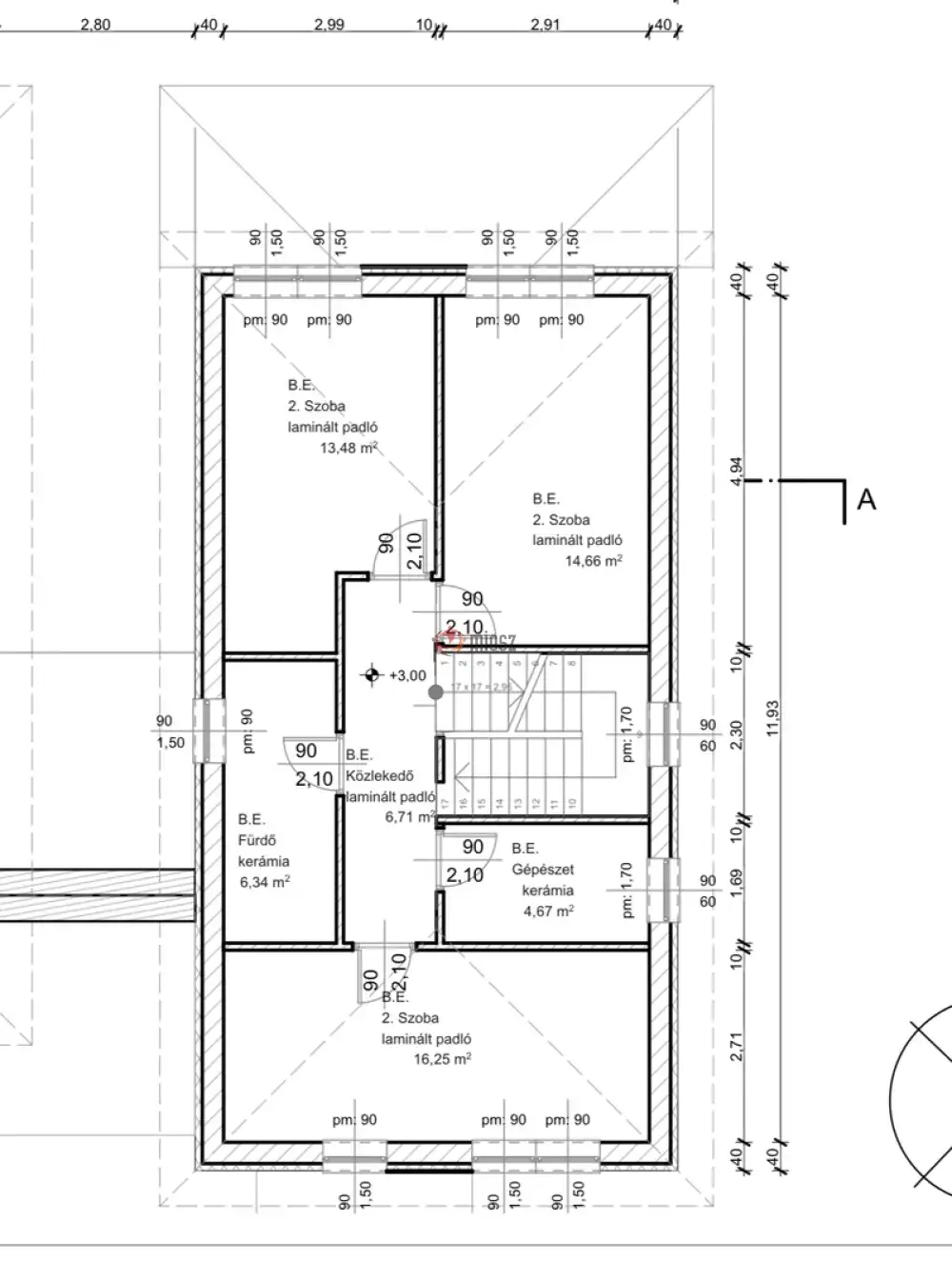
INGATLAN ADATAI

Ingatlan jellege

ikerház

Belső terület

163 m²

Telek terület

650 m²

Tájolás

délnyugat

Építési állapot

új

Építési mód

tégla

Szobák száma

5 szoba

Épület szintje

2.

Épült

2026

Ingatlan állapot

kívül: új
belül: új

Klíma

van

Szigetelés

15 cm

Ablak szerkezete

3 rétegű thermoplan

Fűtés

cirko

Komfort

duplakomfort

Közműállapot

csatorna: bekötve
gáz: bekötve
villany: bekötve
víz: bekötve

Energetika

A:

Az időpont kérés naptár ikonja
HTML
Az időpont kérés naptár ikonja
PDF
Eladó új építésű ikerház
Ingatlan azonosító:
1880_pl

Pest megye, Dunakeszi, Gyártelep

Irányár

194.99 M Ft
(1.2 M Ft/㎡)

Szobák

5 szoba

Terület

163 m²

Telek terület

650 m²
INGATLAN LEÍRÁSA
ÚJ ÉPÍTÉSŰ IKERHÁZFÉL ELADÓ DUNAKESZIN – TELJES INTIMITÁS, MODERN MŰSZAKI TARTALOM
Dunakeszin, a Bem József utca környékén, nyugodt, családias környezetben eladó új építésű ikerházfél.
Az ingatlan 1320 m²-es telken épül, melynek fele tartozik egy ikerház félhez. Jelenleg mindkét ikerházfél elérhető.

A házak kialakítása kiemelten figyel az intimitásra, mivel az ikerfelek kizárólag a garázsoknál érintkeznek, a lakóterek teljesen szeparáltak – ez az ingatlan egyik legfontosabb előnye!
Főbb jellemzők:
* Új építésű, modern ikerházfél
* Saját telekrész kb 650 nm
* Padlófűtés korszerű, energiatakarékos rendszerrel
* 2 db hűtő-fűtő klíma beépítve
* Garázs
* Praktikus, jól átgondolt alaprajz
* Minőségi anyaghasználat

A kivitelező megbízható, sokéves referenciával rendelkezik, évek óta együtt dolgozunk, munkája precíz és ellenőrzött.
Ideális választás családoknak vagy mindazoknak, akik új építésű, modern otthont keresnek kompromisszumok nélkül, valódi privát szférával.


További információért vagy megtekintésért hívjon bizalommal!
Néhány adat a megbízó által közölt információ alapján került feltüntetésre, így a tévedés jogát fenntartjuk!

Egyéb információért hívjon bizalommal.
Amiben segítjük Önöket:
- hitel ügyintézés
- CSOK ügyintézés
- energetikai tanúsítvány
- földhivatali háttér
- földmérés
- értékbecslés
- ingyenes ajánlatküldés országos rendszerből, e-mail cím megadásával.

INGATLAN ADATAI

Ingatlan jellege
ikerház
Belső terület
163 m²
Telek terület
650 m²
Tájolás
délnyugat
Építési állapot
új
Építési mód
tégla
Szobák száma
5 szoba
Épület szintje
2.
Épült
2026
Ingatlan állapot
kívül: új
belül: új
Klíma
van
Szigetelés
15 cm
Ablak szerkezete
3 rétegű thermoplan
Fűtés
cirko
Komfort
duplakomfort
Közműállapot
csatorna: bekötve
gáz: bekötve
villany: bekötve
víz: bekötve
Energetika
A:
TÉRKÉP

Pest megye, Dunakeszi, Gyártelep

Hitelkalkulátor


KAPCSOLAT
Kovács Barbara
Kovács Barbara


+36 30 915 2942

proluxingatlaniroda@gmail.com

KAPCSOLAT
Kovács Barbara

+36 30 915

proluxingatlaniroda@

Az időpont kérés naptár ikonja
IDŐPONTOT KÉREK
A visszahívás kérés telefon ikonja egy azt körbe ölelő nyíllal
VISSZAHÍVÁST KÉREK
Ajánlom egy ismerősömnek ikon
AJÁNLOM EGY ISMERŐSÖMNEK
Facebook megosztás ikon
MEGOSZTÁS

KAPCSOLATFELVÉTEL

Küldés

Az üzenetet sikeresen elküldtük!
Hiba történt!
INGATLAN ADATAI

Ingatlan jellege

ikerház

Belső terület

163 m²

Telek terület

650 m²

Tájolás

délnyugat

Építési állapot

új

Építési mód

tégla

Szobák száma

5 szoba

Épület szintje

2.

Épült

2026

Ingatlan állapot

kívül: új
belül: új

Klíma

van

Szigetelés

15 cm

Ablak szerkezete

3 rétegű thermoplan

Fűtés

cirko

Komfort

duplakomfort

Közműállapot

csatorna: bekötve
gáz: bekötve
villany: bekötve
víz: bekötve

Energetika

A:

Az időpont kérés naptár ikonja
HTML
Az időpont kérés naptár ikonja
PDF

Hasonló ingatlan hírdetések

Eladó új építésű családi ház, vagy kertes ház hirdetést keres Dunakeszi területén?
Jelenleg nincsenek hasonló aktuális ajánlatok Dunakeszi településen.
Tekintse meg további Pest megyei ajánlatainkat !

eladó új építésű ikerház, Taksony

eladó új építésű ikerház

Pest megye, Taksony
Taksony csendes, új építésű lakóövezetében eladó egy modern, tárolókapcsolatos otthon, amely ideális választás lehet családoknak és mindazoknak, akik nyugodt, biztonságos, jól élhető környezetet keres...
Belső terület
111 m²
Telek terület
400 m²
Szobák
4

113.3 M Ft

Új építésű!
Új építésű
eladó új építésű családi ház, Kiskunlacháza

eladó új építésű családi ház

Kiskunlacházán új építésű önálló, nappali + 4 hálószobás családi ház

Pest megye, Kiskunlacháza
Új építésű, önálló családi ház eladó Kiskunlacházán – családbarát környezetben Kiskunlacháza új építésű, csendes lakóövezetében eladó egy modern, önálló otthon, amely tökéletes választás lehet csal...
Belső terület
106 m²
Telek terület
351 m²
Szobák
5

89.1 M Ft

Új építésű!
Új építésű
eladó új építésű családi ház, Kiskunlacháza

eladó új építésű családi ház

Kiskunlacházán tátoló kapcsolatos családi ház 750 nm telekkel!

Pest megye, Kiskunlacháza
Eladó új építésű, A+ energetikai besorolású tároló kapcsolatos családi ház Kiskunlacházán Kiskunlacházán, Budapesttől mindössze 42,3 km-re, központhoz közeli, mégis csendes környezetben eladó egy...
Belső terület
78 m²
Telek terület
800 m²
Szobák
4

80 M Ft

Új építésű!
Új építésű
eladó új építésű ikerház, Kiskunlacháza

eladó új építésű ikerház

Kiskunlacházán tároló kapcsolatos családi ház

Pest megye, Kiskunlacháza
Eladó új építésű, A+ energetikai besorolású tároló kapcsolatos családi ház Kiskunlacházán Kiskunlacházán, Budapesttől mindössze 42,3 km-re, központhoz közeli, mégis csendes környezetben eladó egy ...
Belső terület
72 m²
Telek terület
295 m²
Szobák
4

70 M Ft

Új építésű!
Új építésű
eladó ikerház, Inárcs

eladó ikerház

Pest megye, Inárcs
Kizárólag az Adamcsik Ingatlan kínálatában! Inárcs újépítésű, rendezett részén kínálok megvételre egy nettó 90 m² alapterületű, modern megjelenésű ikerházfelet, 352 m²-es, parkosított telken. A klim...
Belső terület
110 m²
Telek terület
352 m²
Szobák
5

119.99 M Ft

Újszerű!
Újszerű
eladó családi ház, Csömör

eladó családi ház

Pest megye, Csömör, Majorszegiliget
Eladó a 16. kerület közvetlen szomszédságában, Csömör Majorszegiliget, új építésű házak környezetében 2023-ban minimál stílusban épült, 200 nm-es exkluzív, családi ház. Igényes kivitelezés, prémium...
Belső terület
200 m²
Szobák
4

399.9 M Ft

Újszerű!
Újszerű
eladó új építésű családi ház, Albertirsa

eladó új építésű családi ház

Albertirsán igényes új építésű családiház eladó

Pest megye, Albertirsa, Irsa
A Teleki és Fia Ingatlan értékesítésre kínálja Albertirsán ezt az új építésű önálló nagy telken épülő 90,7 nm.-es hasznos alapterületű családiházat. MOST ÉPÜL!! CSOK+ és START OTTHON PLUSZ HITEL kom...
Belső terület
90 m²
Telek terület
2200 m²
Szobák
4

89.9 M Ft

Új építésű!
Új építésű
eladó új építésű családi ház, Erdőkertes

eladó új építésű családi ház

Pest megye, Erdőkertes, Szentsarok
Eladó Erdőkertesen ÚJ ÉPÍTÉSŰ földszintes családi ház! BERUHÁZÓI ÁRON! Erdőkertes csendes, nyugodt környezetében kínáljuk megvételre ezt a 878 nm-es telekre épülő, nettó 102 nm-es, amerikai kony...
Belső terület
115 m²
Telek terület
878 m²
Szobák
4

102.9 M Ft

Új építésű!
Új építésű
Pest megye - Dunakeszi
Pest megye - Dunakeszi
Pest megye - Dunakeszi
Pest megye - Dunakeszi
Pest megye - Dunakeszi
Pest megye - Dunakeszi