Eladó új építésű téglalakás - Budapest, XIV. kerület

KAPCSOLAT
Homolya Gergely


+36 20 404

homolya.gergely@

Az időpont kérés naptár ikonja
IDŐPONTOT KÉREK
A visszahívás kérés telefon ikonja egy azt körbe ölelő nyíllal
VISSZAHÍVÁST KÉREK
Ajánlom egy ismerősömnek ikon
AJÁNLOM EGY ISMERŐSÖMNEK
Facebook megosztás ikon
MEGOSZTÁS

KAPCSOLATFELVÉTEL

Küldés

Az üzenetet sikeresen elküldtük!
Hiba történt!
INGATLAN ADATAI

Ingatlan jellege

téglalakás

Belső terület

32 m²

Tájolás

északnyugat

Építési állapot

új

Építési mód

tégla

Szobák száma

1 szoba

Emelet

2.

Épület szintje

4.

Épült

2026

Akadálymentes

igen

Lift

van

Ingatlan állapot

kívül: új
belül: új

Fűtés

hőszivattyús

Komfort

összkomfort

Kilátás

kertre

Energetika

A+:

Az időpont kérés naptár ikonja
HTML
Az időpont kérés naptár ikonja
PDF
Eladó új építésű téglalakás
Belső azonosító:
C201
Ingatlan azonosító:
350_pln

Budapest, XIV. kerület, Alsórákos

Irányár

65 M Ft
(2.03 M Ft/㎡)

Szobák

1 szoba

Emelet

2

Terület

32 m²
INGATLAN LEÍRÁSA
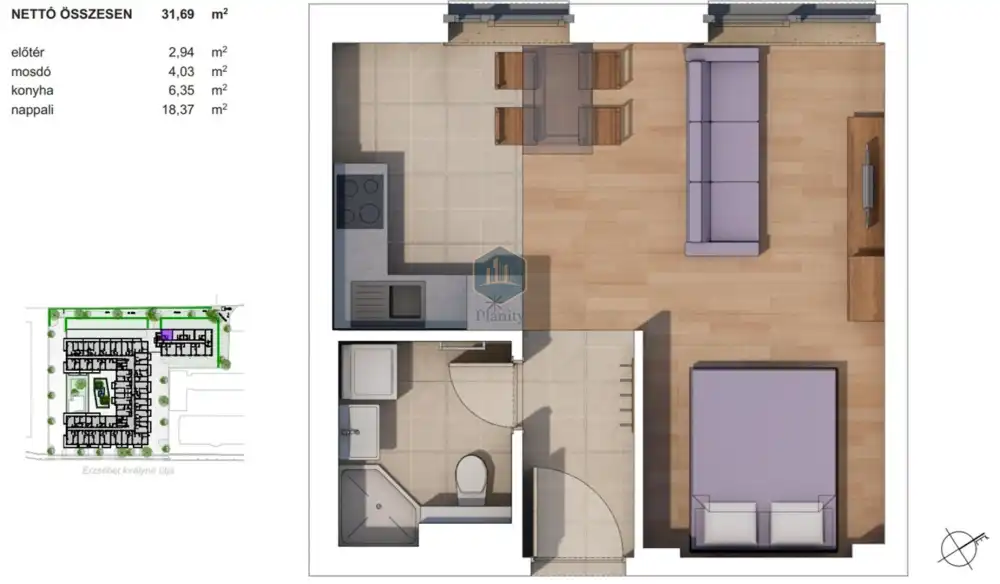
Zugló dinamikusan fejlődő részén, modern lakóparkban kínálunk eladásra egy 32 m²-es, egyszobás lakást.

A 2. emeleti, 32 m²-es lakás praktikus elrendezésének köszönhetően jól bútorozható, ideális választás első lakásnak vagy befektetésnek.

Az ingatlan egy tégla építésű, liftes társasházban helyezkedik el, 2026. júniusi átadással. A korszerű mennyezeti hűtés-fűtés rendszer egész évben kellemes hőérzetet biztosít, miközben az energiahatékony megoldások alacsony fenntartási költségeket eredményeznek.

A társasház -2 szintjén mélygarázs kerül kialakításra, fűtött lehajtóval, ahol igény szerint beállóhely és tároló vásárolható.

⚠️ Fontos: a lakás kizárólag készpénzes vásárlók számára érhető el.

Elhelyezkedés
Zugló fejlődő, egyre népszerűbb részén, jó közlekedéssel és infrastruktúrával.

Ideális választás
Első lakásnak vagy kiadásra – könnyen fenntartható, jól hasznosítható ingatlan.

INGATLAN ADATAI

Ingatlan jellege
téglalakás
Belső terület
32 m²
Tájolás
északnyugat
Építési állapot
új
Építési mód
tégla
Szobák száma
1 szoba
Emelet
2.
Épület szintje
4.
Épült
2026
Akadálymentes
igen
Lift
van
Ingatlan állapot
kívül: új
belül: új
Fűtés
hőszivattyús
Komfort
összkomfort
Kilátás
kertre
Energetika
A+:
TÉRKÉP

Budapest, XIV. kerület, Alsórákos

Hitelkalkulátor


KAPCSOLAT
Homolya Gergely
Homolya Gergely


+36 20 404 0393

homolya.gergely@planity.hu

KAPCSOLAT
Homolya Gergely

+36 20 404

homolya.gergely@

Az időpont kérés naptár ikonja
IDŐPONTOT KÉREK
A visszahívás kérés telefon ikonja egy azt körbe ölelő nyíllal
VISSZAHÍVÁST KÉREK
Ajánlom egy ismerősömnek ikon
AJÁNLOM EGY ISMERŐSÖMNEK
Facebook megosztás ikon
MEGOSZTÁS

KAPCSOLATFELVÉTEL

Küldés

Az üzenetet sikeresen elküldtük!
Hiba történt!
INGATLAN ADATAI

Ingatlan jellege

lakás

Belső terület

32 m²

Tájolás

északnyugat

Építési állapot

új

Építési mód

tégla

Szobák száma

1 szoba

Emelet

2.

Épület szintje

4.

Épült

2026

Lift

van

Ingatlan állapot

kívül: új
belül: új

Fűtés

hőszivattyús

Komfort

összkomfort

Kilátás

kertre

Energetika

A+:

Az időpont kérés naptár ikonja
HTML
Az időpont kérés naptár ikonja
PDF

Hasonló ingatlan hírdetések

Eladó új építésű tégla-, vagy panellakás hirdetést keres Budapesten a XIV. kerületben?
Tekintse meg további ajánlatainkat!

eladó új építésű lakás, Budapest, XIV. kerület

eladó új építésű lakás

Budapest, XIV. kerület, Alsórákos
Zugló dinamikusan fejlődő részén, modern lakóparkban kínálunk eladásra egy 44 m²-es, erkélyes lakást. A nappali + külön nyíló hálószobás, 44 m²-es lakás praktikus elrendezésének és jól kihasználhat...
Belső terület
44 m²
Szobák
2
Emelet
2

80 M Ft

eladó új építésű lakás, Budapest, XIV. kerület

eladó új építésű lakás

Budapest, XIV. kerület, Alsórákos
Zugló dinamikusan fejlődő részén, modern lakóparkban kínálunk eladásra egy 32 m²-es, egyszobás lakást. A 2. emeleti, 32 m²-es lakás praktikus elrendezésének köszönhetően jól bútorozható, ideális vá...
Belső terület
32 m²
Szobák
1
Emelet
3

65 M Ft

eladó új építésű lakás, Budapest, XIV. kerület

eladó új építésű lakás

Budapest, XIV. kerület, Alsórákos
Zugló dinamikusan fejlődő részén, kertvárosi környezet közelében, modern lakóparkban kínálunk eladásra egy földszinti, kertkapcsolatos garzonlakást. A 32 m²-es, egyszobás lakás ideális választás el...
Belső terület
32 m²
Szobák
1
Emelet
földszint

79 M Ft

eladó lakás, Budapest, XIV. kerület

eladó lakás

Budapest, XIV. kerület, Alsórákos, Bartl János utca
XIV. kerület | Paskal Garden | 1. emeleti modern lakás iroda besorolással | A+ energetika A XIV. kerület zöldövezeti részén, a 2023-ban átadott Paskal Garden lakóparkban kínálunk eladásra egy 1. em...
Belső terület
48 m²
Szobák
2
Emelet
1

104.96 M Ft

eladó lakás, Budapest, XIV. kerület

eladó lakás

Budapest, XIV. kerület, Alsórákos, Bartl János utca
XIV. kerület | Paskal Garden | 1. emeleti modern lakás iroda besorolással | A+ energetika A XIV. kerület zöldövezeti részén, a 2023-ban átadott Paskal Garden lakóparkban kínálunk eladásra egy 1. em...
Belső terület
52 m²
Szobák
2
Emelet
1

114.48 M Ft

eladó lakás, Budapest, XIV. kerület

eladó lakás

Budapest, XIV. kerület, Alsórákos
XIV. kerület | Paskal Garden | 1. emeleti modern lakás iroda besorolással | A+ energetika A XIV. kerület zöldövezeti részén, a 2023-ban átadott Paskal Garden lakóparkban kínálunk eladásra egy 1. em...
Belső terület
47 m²
Szobák
2
Emelet
1

103.56 M Ft

eladó új építésű lakás, Budapest, XIV. kerület

eladó új építésű lakás

Budapest, XIV. kerület, Alsórákos
Zugló dinamikusan fejlődő részén, kertvárosi környezet közelében, egy modern kialakítású új lakóparkban kínálunk eladásra egy fiatalos, első emeleti lakást. A lakás jelenleg kizárólag készpénzes üg...
Belső terület
51 m²
Szobák
2
Emelet
1

77 M Ft

eladó új építésű lakás, Budapest, XIV. kerület

eladó új építésű lakás

Budapest, XIV. kerület, Alsórákos, Erzsébet királyné útja
Zugló dinamikusan fejlődő részén, kertvárosi környezet közelében, egy modern kialakítású új lakóparkban kínálunk eladásra egy fiatalos, első emeleti lakást. Az ingatlan kizárólag készpénzes vásárló...
Belső terület
56 m²
Szobák
2
Emelet
1

88 M Ft

Budapest, XIV. kerület - Alsórákos
Budapest, XIV. kerület - Alsórákos
Budapest, XIV. kerület - Alsórákos
Budapest, XIV. kerület - Alsórákos