Eladó új építésű ikerház - Kiskunlacháza

Új építésű!
Új építésű
KAPCSOLAT
Belák Ilona Kinga


+36 20 227

b.ilonakinga@

Az időpont kérés naptár ikonja
IDŐPONTOT KÉREK
A visszahívás kérés telefon ikonja egy azt körbe ölelő nyíllal
VISSZAHÍVÁST KÉREK
Ajánlom egy ismerősömnek ikon
AJÁNLOM EGY ISMERŐSÖMNEK
Facebook megosztás ikon
MEGOSZTÁS

KAPCSOLATFELVÉTEL

Küldés

Az üzenetet sikeresen elküldtük!
Hiba történt!
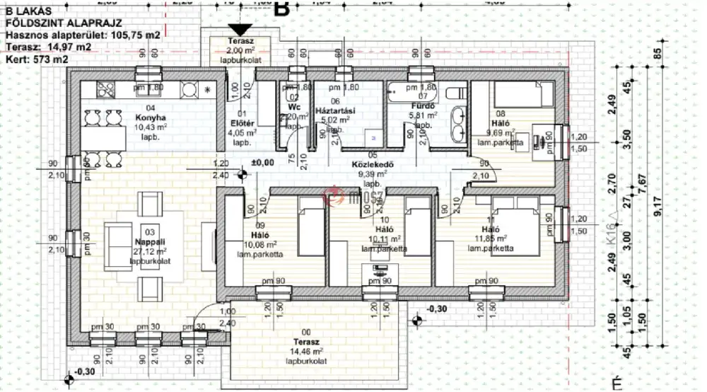
INGATLAN ADATAI

Ingatlan jellege

ikerház

Belső terület

106 m²

Telek terület

573 m²

Tájolás

délnyugat

Építési állapot

új

Építési mód

tégla

Szobák száma

4 szoba

Terasz

14.46 m²

Épület szintje

1.

Épült

2025

Ingatlan állapot

kívül: új
belül: új

Szigetelés

15 cm

Fűtés

hőszivattyús

Komfort

összkomfort

Közműállapot

csatorna: bekötve
gáz: bekötve
villany: bekötve
víz: bekötve

Energetika

nincs megadva

Extrák

utolsó lehetőség

Az időpont kérés naptár ikonja
HTML
Az időpont kérés naptár ikonja
PDF
Eladó új építésű ikerház
Belső azonosító:
35096735
Ingatlan azonosító:
348_isz

Pest megye, Kiskunlacháza

Irányár

79.5 M Ft
(750 E Ft/㎡)

Szobák

4 szoba

Terület

106 m²

Telek terület

573 m²
INGATLAN LEÍRÁSA
ÚJ ÉPÍTÉSŰ CSALÁDI HÁZ
3% OTTHON START HITELLEL MEGVÁSÁROLHATÓ

Kiskunlacháza – nyugodt, családias környezetben

FŐBB ADATOK
106 m² hasznos alapterület
Amerikai konyhás nappali + 3 hálószoba
573 m² saját kert
Teraszkapcsolatos nappali

750.000 Ft / m²
Átadás: 2026. február–március

MODERN MŰSZAKI TARTALOM
Hőszivattyús fűtés
Padlófűtés
Korszerű szigetelés és modern nyílászárók
Praktikus, jól átgondolt alaprajz
Alacsony rezsiköltség

MIÉRT JÓ VÁLASZTÁS
Új építés, nincs felújítási költség
Ideális családosoknak
Értéktartó befektetés
Otthon Start (3%) és CSOK Plusz lehetőség

INGATLAN ADATAI

Ingatlan jellege
ikerház
Belső terület
106 m²
Telek terület
573 m²
Tájolás
délnyugat
Építési állapot
új
Építési mód
tégla
Szobák száma
4 szoba
Terasz
14.46 m²
Épület szintje
1.
Épült
2025
Ingatlan állapot
kívül: új
belül: új
Szigetelés
15 cm
Fűtés
hőszivattyús
Komfort
összkomfort
Közműállapot
csatorna: bekötve
gáz: bekötve
villany: bekötve
víz: bekötve
Energetika
nincs megadva
Extrák
utolsó lehetőség
TÉRKÉP

Pest megye, Kiskunlacháza

Hitelkalkulátor


KAPCSOLAT
Belák Ilona Kinga
Belák Ilona Kinga


+36 20 227 7335

b.ilonakinga@gmail.com

KAPCSOLAT
Belák Ilona Kinga

+36 20 227

b.ilonakinga@

Az időpont kérés naptár ikonja
IDŐPONTOT KÉREK
A visszahívás kérés telefon ikonja egy azt körbe ölelő nyíllal
VISSZAHÍVÁST KÉREK
Ajánlom egy ismerősömnek ikon
AJÁNLOM EGY ISMERŐSÖMNEK
Facebook megosztás ikon
MEGOSZTÁS

KAPCSOLATFELVÉTEL

Küldés

Az üzenetet sikeresen elküldtük!
Hiba történt!
INGATLAN ADATAI

Ingatlan jellege

ikerház

Belső terület

106 m²

Telek terület

573 m²

Tájolás

délnyugat

Építési állapot

új

Építési mód

tégla

Szobák száma

4 szoba

Terasz

14.46 m²

Épület szintje

1.

Épült

2025

Ingatlan állapot

kívül: új
belül: új

Szigetelés

15 cm

Fűtés

hőszivattyús

Komfort

összkomfort

Közműállapot

csatorna: bekötve
gáz: bekötve
villany: bekötve
víz: bekötve

Energetika

nincs megadva

Extrák

utolsó lehetőség

Az időpont kérés naptár ikonja
HTML
Az időpont kérés naptár ikonja
PDF

Hasonló ingatlan hírdetések

Eladó új építésű családi ház, vagy kertes ház hirdetést keres Kiskunlacháza területén?
Tekintse meg további ajánlatainkat!

eladó új építésű sorház, Kiskunlacháza

eladó új építésű sorház

Azonnal költözhető, energiatakarékos lakás várja saját kerttel.

Pest megye, Kiskunlacháza
Újszerű, azonnal költözhető társasházi lakások eladók Kiskunlacházán – Budapest vonzáskörzetében! Kiskunlacházán, Budapest gyorsan elérhető vonzáskörzetében kínálunk eladásra teljes körűen felújíto...
Belső terület
36 m²
Telek terület
1 m²
Szobák
1+1

36 M Ft

36 M Ft

azonnal költözhető
Azonnal költözhető
eladó új építésű családi ház, Kiskunlacháza

eladó új építésű családi ház

Pest megye, Kiskunlacháza, Központ
Új építésű, modern, különálló családi ház Kiskunlacházán – 99m² alapterület, 4 szoba, energiatakarékos fűtés! Eladó egy új építésű, modern különálló családi ház Kiskunlacházán, kényelmes, átgondolt...
Belső terület
99 m²
Telek terület
389 m²
Szobák
4

73 M Ft

akciós ár
Akciós
eladó új építésű családi ház, Kiskunlacháza

eladó új építésű családi ház

Újépítésű önálló családi ház Kiskunlacházán!

Pest megye, Kiskunlacháza
Új építésű otthon Kiskunlacházán – költözz be azonnal, élvezd a kényelmet! CSOK PLUSZRA, 3% HITELRE IS ALKALMAS! Eladó Kiskunlacházán egy nettó 106 m²-es, tégla építésű, 2024-ben elkészült csalá...
Belső terület
106 m²
Telek terület
500 m²
Szobák
4

87.9 M Ft

eladó új építésű sorház, Kiskunlacháza

eladó új építésű sorház

Pest megye, Kiskunlacháza
Új építésű,remek belső elrendezésű lakás egy nyugodt környéken! Kiskunlacháza a fővárost és a nyugodt vidéki életet összekötő település, a Duna partján, a Ráckevei járásban található. Az M51-es aut...
Belső terület
90 m²
Telek terület
305 m²
Szobák
3

67.5 M Ft

árcsökkenés!
Árcsökkenés
eladó új építésű ikerház, Kiskunlacháza

eladó új építésű ikerház

Pest megye, Kiskunlacháza, Mikes Kelemen utca
3% kedvezményes hitelre alkalmas! Kiskunlacházán, a központhoz közel, kulturált környezetben kínálok eladásra új építésű, 110 nm, dupla garázsos, 4 szobás ikerház felet, kb.500 nm saját, elkerített t...
Belső terület
85 m²
Telek terület
500 m²
Szobák
4

79.9 M Ft

eladó új építésű családi ház, Kiskunlacháza

eladó új építésű családi ház

Pest megye, Kiskunlacháza
ÚJ PROJEKT KISKUNLACHÁZÁN! Új építésű, önálló családi házakat értékesítünk. A házak nettó 100 nm, bruttó 125 nm nagyságúak. Elrendezésük: előtér, amerikai konyha/étkező /nappali, 3 - vagy igény e...
Belső terület
100 m²
Telek terület
842 m²
Szobák
4

79.2 M Ft

eladó új építésű ikerház, Kiskunlacháza

eladó új építésű ikerház

Pest megye, Kiskunlacháza, Központ
Kiskunlacháza központjában, az Arany János utcában kínálom eladásra egy új építésű ikerház 1 db 40 nm lakását, 170 nm saját, elkerített telekkel. Elrendezés: előtér, amerikai konyha-nappali, hálósz...
Belső terület
39 m²
Telek terület
170 m²
Szobák
2

41 M Ft

eladó új építésű ikerház, Kiskunlacháza

eladó új építésű ikerház

Pest megye, Kiskunlacháza
AZONNAL KÖLTÖZHETŐ INGATLANOK AJÁNDÉK KONYHABÚTORRAL! Kiskunlacháza központjában kínálunk eladásra kizárólag tárolókapcsolatos új építésű ikerházi lakásokat saját használatú telekkel. A lakások ...
Telek terület
1 m²
Szobák
4

64.9 M Ft

Pest megye - Kiskunlacháza
Pest megye - Kiskunlacháza
Pest megye - Kiskunlacháza
Pest megye - Kiskunlacháza
Pest megye - Kiskunlacháza
Pest megye - Kiskunlacháza